Beschrijving
Dit leuke startersappartement op de derde verdieping aan de Goereesestraat in Rotterdam is heerlijk licht en biedt een knus balkon op het zuidoosten. De doorzonwoonkamer loopt over in de praktische, deels open keuken met daglicht. Aan de achterzijde bevinden zich twee slaapkamers en een knusse badkamer. Het appartement is voorzien van kunststof kozijnen met HR+ glas. In de onderbouw is een eigen berging aanwezig voor fiets en opslag. Wie centraal wil wonen, zit hier perfect. Winkels, OV, scholen en het Zuiderpark liggen op loopafstand.
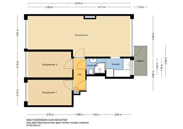
Indeling
Entree: Bij binnenkomst word je ontvangen in een nette hal met voldoende ruimte om jassen en schoenen een plek te geven. De hal geeft toegang tot de meterkast, slaapkamers, woonkamer en badkamer. De vloer loopt hier, net als in de rest van het appartement, door in één stijl. Het gehele appartement is afgewerkt met een laminaatvloer, gestuukte wanden en een gestuukt plafond.
Meterkast: Meterkast met 4 elektrische groepen, een aardlekschakelaar en een hoofdaardlekschakelaar.
Woonkamer: De doorzonwoonkamer is heerlijk licht dankzij de grote ramen aan beide zijden. Aan de voorzijde is er een deur naar een knus balkon, ideaal om even buiten te zitten. Dankzij de kunststof kozijnen met HR+ glas profiteer je van goede isolatie en weinig onderhoud.
Keuken: De deels open hoekkeuken is compact maar praktisch ingedeeld en uitgerust met een 4-pits gasstel, afzuigkap en koelkast. Daarnaast is er een aansluiting voor de wasmachine. Het raam bij de keuken zorgt voor prettig daglicht en geeft je tijdens het koken een leuk uitzicht.
Slaapkamer 1: Aan de achterzijde ligt de eerste slaapkamer. Met een frisse verfbeurt maak je deze ruimte eenvoudig eigen. Ideaal als slaapkamer, maar ook geschikt als werk- of kledingkamer.
Slaapkamer 2: Ook de tweede slaapkamer bevindt zich aan de achterzijde. Een fijne extra kamer die perfect past bij de wensen van starters: als slaapkamer, thuiskantoor of hobbyruimte.
Badkamer: De badkamer is compact maar knus en compleet ingericht met een wastafel, toilet en douchecabine. Een designradiator zorgt voor extra comfort. De Cv-ketel is netjes weggewerkt in een kast.
Balkon
Balkon: Het balkon ligt op het zuidoosten, waardoor je hier ’s ochtends en in de middag heerlijk van de zon geniet. Een knusse plek om even buiten te zitten met een kop koffie of een goed boek.
Berging: In de onderbouw van het complex beschik je over een eigen berging met ventilatie. Handig voor het stallen van je fiets en het opbergen van extra spullen.
Bijzonderheden
Wie centraal wil wonen, zit hier perfect. Op loopafstand vind je winkelcentrum Zuidplein, metro- en busstation, Ahoy, scholen en het Ikazia ziekenhuis. Voor ontspanning is het Zuiderpark om de hoek. Met zowel OV als de auto bereik je in no-time het centrum van Rotterdam en de uitvalswegen.
ALGEMEEN
Bouwjaar: 1940
Verwarming: Nefit Cv-ketel (2015)
Warmwatervoorziening: Nefit Cv-ketel (2015)
Glas: HR + beglazing
Kozijnen: Kunststof kozijnen
Bijdrage VvE: 156,85