Beschrijving
Deze ruime tussenwoning is ideaal voor een groot gezin en biedt maar liefst zes slaapkamers, een kunststof dakkapel en een nokverhoging. De zonnige achtertuin op het zuidwesten is keurig aangelegd en biedt voldoende privacy. Op de begane grond vind je een lichte doorzonwoonkamer met houtkachel en een strakke keuken. De eerste verdieping beschikt over drie slaapkamers en een badkamer met ligbad, inloopdouche en wastafel. Op de tweede verdieping bevinden zich nog eens drie slaapkamers, een overloop met Cv-ketel en toegang tot een bergzolder. De woning is de afgelopen jaren op verschillende punten verbeterd en gerenoveerd. Hierdoor is het geheel goed onderhouden en klaar voor toekomstig wooncomfort. Dankzij de centrale ligging in Westpolder zijn scholen, winkels en andere voorzieningen snel bereikbaar. Kortom, een goed onderhouden en sfeervolle gezinswoning die direct te betrekken is.
Indeling
Entree: Bij binnenkomst valt direct de ruimte en lichtinval in de hal op. De hal geeft toegang tot de meterkast, trapkast, toilet, de trap naar de eerste verdieping, de woonkamer en de keuken. Er is voldoende ruimte voor een kapstok of schoenenkast. De wanden en het plafond zijn gestuukt en de vloer is voorzien van hout, wat een verzorgde indruk geeft.
Meterkast: De meterkast is uitgerust met acht groepen en een aardlekschakelaar. Tijdens de verbouwing van de zolder in 2023/2024 is de elektrische installatie daar volledig vernieuwd. Daarnaast zijn in 2021 vrijwel alle stopcontacten in de woning vernieuwd (met uitzondering van keuken en badkamer).
Toilet: Het toilet is deels betegeld en voorzien van een zwevend toilet, fonteintje en elektrische ventilatie.
Woonkamer: De doorzonwoonkamer strekt zich uit van voor- naar achterzijde en is daardoor heerlijk licht. De grote schuifpui geeft directe toegang tot de achtertuin. Aan de voorzijde is ruimte voor een zithoek en aan de achterzijde voor een eettafel. De houtkachel vormt een sfeervol middelpunt. De originele schouw is vervangen door een houtkachel en de muur is afgewerkt met oude eikenhouten balken en stenen, wat extra karakter geeft. De eikenhouten visgraatvloer is geschuurd en geolied en aan de achterzijde van de woning is een zonnescherm geplaatst.
Keuken: De gesloten keuken is praktisch ingedeeld met onder- en bovenkasten en voorzien van een oven-/magnetroncombinatie met warmhoudlade en zelfreinigingsfunctie, inductiekookplaat, afzuigkap, koelkast en vaatwasser. De keukenkraan heeft een uittrekbare sproeikop en is aangesloten op een 10-liter close-in boiler. Inbouwspots zorgen voor prettig werklicht en via de achterdeur is er directe toegang tot de tuin. De vloer is voorzien van plavuizen.
Eerste verdieping
Overloop: De overloop op de eerste verdieping geeft toegang tot drie slaapkamers, de badkamer, een separate toiletruimte en de trap naar de tweede verdieping. Diverse ramen in de woning zijn voorzien van horren.
Slaapkamer 1: Slaapkamer één ligt aan de voorzijde en is dankzij de grote raampartij heerlijk licht met vrij uitzicht over de straat. De kamer wordt momenteel gebruikt als kinderkamer met hoogslaper, maar kan eenvoudig worden ingericht als werk-, hobby- of kledingkamer.
Slaapkamer 2: Slaapkamer twee is een ruime slaapkamer aan de voorzijde met een handige vaste kast.
Slaapkamer 3: Slaapkamer drie, de master bedroom, ligt aan de achterzijde en heeft grote ramen met een zonnescherm. De kamer biedt ruimte voor een tweepersoonsbed en kasten en is licht en ruimtelijk. Dankzij het kleurgebruik op de muren en de inbouwspots is de kamer sfeervol.
Badkamer: De badkamer is volledig betegeld en uitgerust met een ligbad, inloopdouche, wastafel en designradiator. Het grote raam zorgt voor daglicht en natuurlijke ventilatie. Daarnaast is er een recent geplaatste doucheventilator met vocht- en naloopregeling. Ook zijn hier aansluitingen voor wasmachine en droger aanwezig.
Toilet: De separate toiletruimte is deels betegeld en voorzien van een zwevend toilet.
Tweede verdieping
De zolder is in 2023/2024 volledig verbouwd, inclusief nokverhoging en een kunststof dakkapel, waardoor een volwaardige extra woonverdieping met drie slaapkamers is ontstaan. Bij de verbouwing zijn de kozijnen, betimmering en gevelbekleding van de nokverhoging volledig vernieuwd en voorzien van kunststof kozijnen met triple glas, kunststof gevelbekleding en elektrisch bedienbare rolluiken. De zolder is daarbij volledig geïsoleerd, inclusief de verdiepingsvloer.
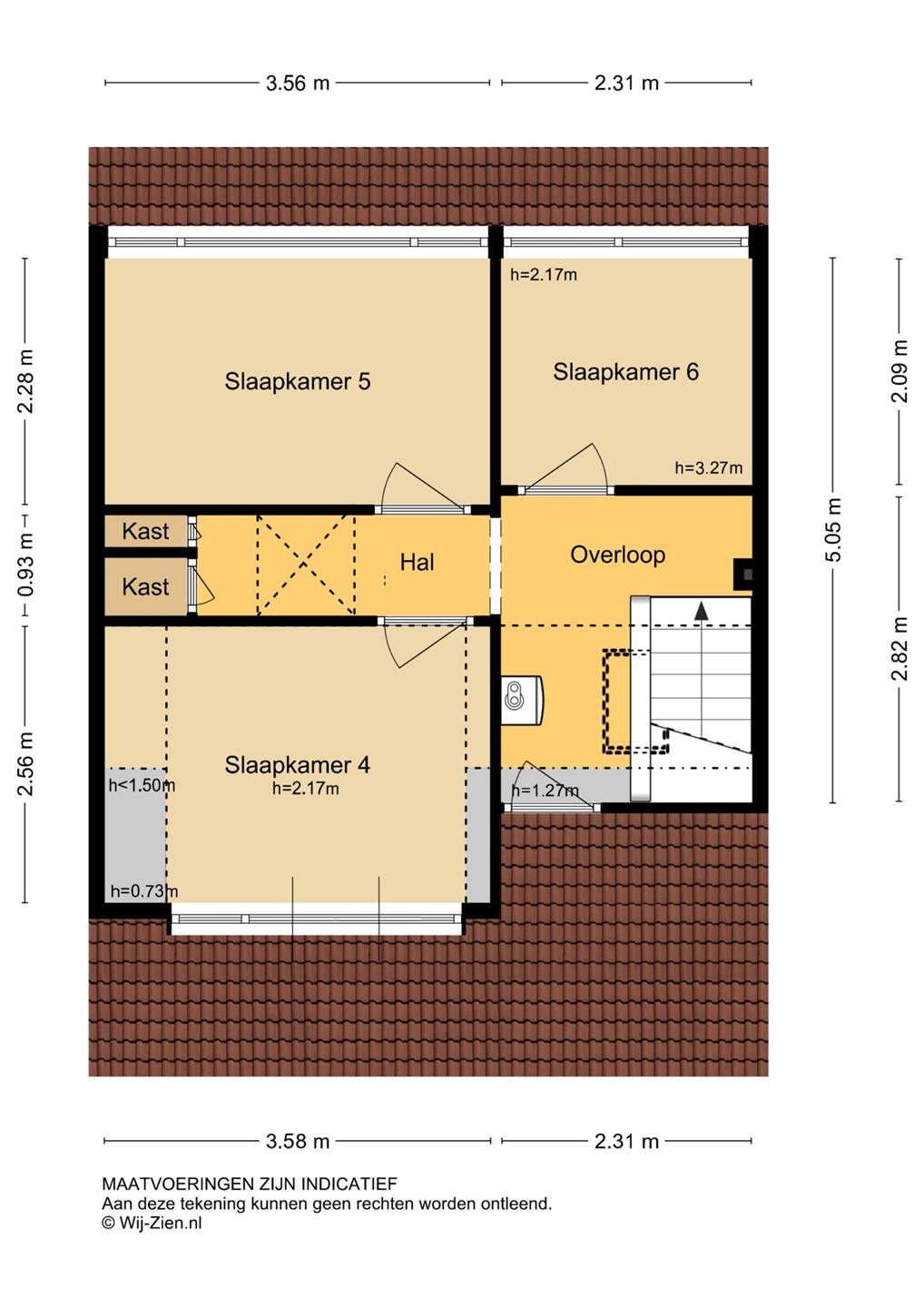
Overloop: De L-vormige overloop heeft een dakraam en knieschotten voor extra bergruimte. Hier bevinden zich ook de Cv-ketel en een praktische boekenkast boven het trapgat. De overloop geeft toegang tot drie slaapkamers en de bergzolder. De vloer is laminaat, de wanden gestuukt en het plafond hout.
Slaapkamer 4: Slaapkamer vier is gelegen aan de voorzijde en is ingericht als leuke kinderkamer. Dankzij de dakkapel is er veel ruimte en de knieschotten bieden handige opbergruimte.
Slaapkamer 5: Slaapkamer vijf ligt aan de achterzijde en is een lichte kamer met houten balkenplafond en sfeervolle verlichting. Plaats een bureau onder het raam en geniet van leren of werken met een fijn uitzicht.
Slaapkamer 6: Slaapkamer zes ligt eveneens aan de achterzijde en is slim ingericht met een hoogslaper en bureau, waardoor er nog speelruimte overblijft. Vanuit deze kamer is de bergzolder bereikbaar.
Overige verdiepingen
Bergzolder: De bergzolder is verdeeld in twee delen en bereikbaar vanaf de overloop en slaapkamer zes. Ideaal voor het opbergen van alles wat je niet dagelijks gebruikt, zoals koffers, seizoensspullen of hobbyspullen.
In totaal beschikt de woning over maar liefst zes slaapkamers, ideaal voor een groot gezin, thuiswerken of hobbyruimte.
Tuin
Voortuin: De voortuin heeft een royaal formaat en is aangelegd met kunstgras, borders en sierbestrating. De tuin is in augustus 2025 nieuw aangelegd en beschikt over een druppelslang, vorstvrije buitenkraan en sfeervolle In-Lite tuinverlichting (ter overname). Een trampoline (ter overname) is aanwezig.
Achtertuin: De zonnige achtertuin van circa 9,8 x 6 meter ligt op het zuidwesten, waardoor je hier van de middag tot in de avond van de zon kunt genieten. De tuin is aangelegd met een terras en kunstgras. Naast de achterdeur bevindt zich een buitenkraan en achter in de tuin is een dubbel stopcontact aanwezig, ideaal voor tuinverlichting of elektrisch gereedschap.
Schuur: De stenen schuur is in 2022 opgeknapt, waarbij de elektra is vernieuwd met nieuwe stopcontacten en LED-verlichting. Daarnaast is er veel praktische opbergruimte gecreëerd met een kast opgebouwd uit zwevende wandplanken. Het dak is voorzien van een sedumdak.
Daarnaast zijn in 2024 alle zinken dakgoten van de woning vernieuwd.
Bijzonderheden
Ruime tussenwoning welke heerlijk vrij en centraal is gelegen. Scholen, theater, kerk, veel groen én de supermarkt om de hoek. Mega centraal en toch vrij en in het groen én klaar om direct in te trekken.
ALGEMEEN
Bouwjaar: 1963
Verwarming: Intergas HRE Cv-ketel (2023) + houtkachel
Warmwatervoorziening: Intergas HRE Cv-ketel (2023) + Inventum boiler
Glas: HR+++ en HR++ beglazing
Kozijnen: Houten en kunststof kozijnen