Beschrijving
Deze in 2024/2025 compleet gerenoveerde geschakelde bungalow is een toonbeeld van duurzaamheid en modern wooncomfort. Met een totale oppervlakte van 158 m², waarvan 17 m² momenteel wordt gebruikt als berging/wasruimte, biedt deze woning volop ruimte en mogelijkheden. De woning is volledig gasloos uitgevoerd met een Daikin warmtepomp, 22 zonnepanelen en hoogwaardige isolatie. Met alle voorzieningen op de begane grond is de woning levensloopbestendig. De unieke indeling met een vide en zitkuil zorgt voor een ruimtelijke beleving. De lichte woonkamer met houtkachel loopt vloeiend over in de luxe woonkeuken met kookeiland. Het is eenvoudig mogelijk om een derde slaapkamer op de begane grond en een vierde slaapkamer op de vide te creëren. De zonnige achtertuin op het zuiden en de ligging nabij het centrum maken het vakantiegevoel op deze locatie compleet.
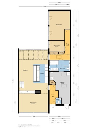
Indeling
Entree: De lichte hal biedt een verzorgde binnenkomst en is voorzien van een dakraam en een praktische inbouwkast. De wanden zijn afgewerkt met behang en stijlvolle akoestische panelen waarin een deur subtiel is verwerkt. Vanuit de hal is er toegang tot de toiletruimte, de berging, de meterkast en de woonkamer. De vloer is afgewerkt met hoogwaardig PVC voorzien van vloerverwarming.
Meterkast: De volledige elektrische installatie is in 2024 vernieuwd, inclusief de meterkast, alle bedrading en het schakelwerk. De installatie beschikt over 14 groepen, drie aardlekschakelaars en een hoofdaardlekschakelaar, waarbij alle stopcontacten in de woning zijn geaard.
Toilet: De moderne toiletruimte is deels betegeld en is voorzien van een zwevend toilet en een wastafel met een mooie waskom. De ruimte beschikt over mechanische ventilatie.
Woonkamer: De ruime woonkamer met vide heeft een speelse indeling door de aanwezigheid van een serre en een verlaagde zitkuil. In de zitkuil zorgt de houtkachel met automatische ventilatoren voor extra warmte en sfeer. De grote schuifpui aan de achterzijde zorgt voor een open verbinding met de tuin. De gehele ruimte, inclusief de zitkuil, is voorzien van vloerverwarming en strak gestuukte wanden.
Vide: De vide is bereikbaar via de prachtige trap in de woonkamer en biedt een unieke blik over de gehele leefruimte beneden. Momenteel is deze lichte ruimte ingericht als werkplek, met directe toegang tot het grote balkon aan de voorzijde. Door de open verbinding en de grote raampartijen voelt dit als een inspirerende plek om te verblijven. De wanden zijn strak gestuukt en de vloer is afgewerkt met PVC.
Keuken: De open keuken is uitgevoerd met een groot kookeiland en een koffienis, wat zorgt voor een moderne en luxe uitstraling. De keuken is compleet uitgerust met een inductiekookplaat met geïntegreerde afzuiging, een Quooker, een elektrische boiler, een oven, vaatwasser, koelkast en vriezer. Dankzij de vele ramen valt er prettig licht op het werkblad. De afwerking bestaat uit strak gestuukte wanden en een drempelloos doorgelegde PVC-vloer met vloerverwarming.
Berging: De inpandige berging is bereikbaar vanuit de hal en herbergt de technische installaties, waaronder de Daikin warmtepomp (2024) en de 230 liter boiler. Hier bevinden zich tevens de aansluitingen voor de wasmachine en droger. De ruimte is voorzien van een dakraam, vloerverwarming en een deur die direct toegang geeft tot de oprit.
Gang: De lange gang op de begane grond verbindt de verschillende vertrekken en benadrukt het levensloopbestendige karakter. Meerdere inbouwkasten bieden extra bergruimte en een dakraam zorgt voor natuurlijk daglicht. De overloop geeft toegang tot de badkamer en de twee slaapkamers en is volledig voorzien van vloerverwarming.
Slaapkamer 1: Deze slaapkamer is gelegen op de begane grond en beschikt over een praktische inbouwkast en airconditioning voor een optimaal slaapklimaat. Via een loopdeur is er direct toegang tot de achtertuin voor een heerlijk binnen-buitengevoel. De kamer is voorzien van kunststof kozijnen met triple beglazing (HR+++) voor maximale isolatie.
Slaapkamer 2: De tweede slaapkamer op de begane grond is zeer ruim opgezet en biedt door de huidige indeling de mogelijkheid om eenvoudig gesplitst te worden in twee aparte kamers. Deze kamer beschikt over een extra hoog plafond dankzij de in 2024 verhoogde dakconstructie. De kamer is ook voorzien van kunststof kozijnen met triple beglazing.
Badkamer: De luxe badkamer is volledig betegeld en ingericht met een ligbad, een inloopdouche en een meubel met dubbele waskom. De ruimte beschikt over een elektrisch bedienbaar dakraam met regensensor, vloerverwarming en sfeervol verlichte nisjes. Tevens is er een tweede zwevend toilet en mechanische ventilatie aanwezig voor optimaal comfort.
Tuin
Voortuin: De voortuin is gelegen op het noorden en is praktisch ingericht met sierbestrating en diverse groene plantenborders. De ruime oprit bied je de mogelijkheid om twee auto's op eigen terrein te parkeren. Er is een wateraansluiting aanwezig voor het onderhoud van de voortuin.
Achtertuin: De zonnige achtertuin op het zuiden is recent aangelegd en biedt een sfeer die doet denken aan een vakantieverblijf. Het is een leuke en gezellige buitenruimte, verzorgd ingericht met sierbestrating, kunstgras, grind en moderne elementen van cortenstaal, omgeven door mooie beplanting. Een absoluut hoogtepunt is de knusse zitkuil, de perfecte plek voor lange zomeravonden rondom een knisperende vuurschaal. Dankzij de handige achterom is de tuin ook met de fiets goed bereikbaar. De aanwezigheid van een buitenkraan en elektrapunten maakt deze tuin compleet.
Schuur: In de achtertuin bevindt zich een royale, vrijstaande houten schuur met een opvallende nokhoogte. De schuur is voorzien van elektra en biedt uitstekende mogelijkheden voor opslag.
Bijzonderheden
HIGHLIGHTS
• Volledige renovatie en verduurzaming uitgevoerd in 2024/2025 (inclusief nieuwe daken en vernieuwd leidingwerk/elektra).
• Hoogwaardige isolatie: PIR-isolatie in daken en voorzetwanden, gecombineerd met steenwol in de spouw.
• Zeer energiezuinig (A++) dankzij 22 zonnepanelen en een Daikin warmtepomp. De woning is nagenoeg zelfvoorzienend; energielasten voor 2025 worden geschat op nagenoeg nul euro.
• Optimaal klimaatbeheer via Daikin airconditioning en een houtkachel met automatische ventilatoren.
• Gelijkvloers en levensloopbestendig wonen met vloerverwarming in de gehele woning (excl. vide).
• Flexibele indeling: eenvoudige mogelijkheid tot het creëren van een 3e slaapkamer op de begane grond en een 4e slaapkamer op de vide.
• Gevels in 2024 gereinigd en geïmpregneerd; grotendeels onderhoudsvrije kozijnen.
• Unieke locatie met een rustige, bijna parkachtige beleving.
ALGEMEEN
Bouwjaar: 1975 (renovatie 2024/2025)
Verwarming: Vloerverwarming (gehele woning excl. vide), Daikin warmtepomp (2024), houtkachel
Warmwatervoorziening: Elektrische boiler 230 liter
Glas: HR, HR++ en HR+++ beglazing
Kozijnen: Aluminium, hout, kunststof