Beschrijving
Deze indrukwekkend ruime twee-onder-een-kapwoning beschikt over een royale woonoppervlakte van 177 m², een uitbouw van 4 meter aan de achterzijde en een opbouw op de berging/garage. De lichte woonkamer is uitgebouwd met een schuifpui en loopt naadloos over in de open keuken. Op de eerste verdieping liggen drie slaapkamers en een badkamer, op de tweede verdieping bevindt zich een ruime vierde slaapkamer met twee dakkapellen. Dankzij de ruime slaapkamers is het mogelijk om van vier slaapkamers tot zes slaapkamers te maken. De achtertuin ligt op het oosten en biedt meerdere zitjes, een grasveld en diverse bomen en struiken. De inpandige berging van 19 m² geeft directe toegang tot de tuin. De woning ligt in de geliefde wijk Wilgendonk, nabij een park, het winkelcentrum, scholen en openbaar vervoer.
Indeling
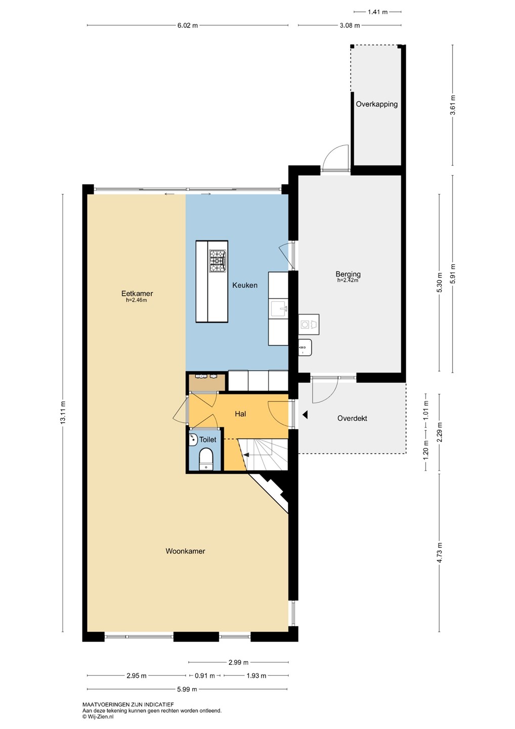
Entree: De hal biedt voldoende ruimte voor een kapstok onder de trap. Er wordt toegang geboden tot de woonkamer, toiletruimte, meterkast en trapopgang naar de eerste verdieping. De hal heeft een plavuizen vloer met vloerverwarming, spachtelputz wanden en een spuitwerk plafond.
Meterkast: De meterkast is voorzien van 8 stoppen en een extra groep voor een laadpaal. Tevens zijn er twee aardlekschakelaars en een hoofdaardlekschakelaar aanwezig.
Toilet: Het toilet is deels betegeld en voorzien van een staand toilet en een fonteintje. Tevens is er mechanische ventilatie aanwezig.
Woonkamer: De woonkamer biedt een ruime leefruimte door de uitbouw aan de achterzijde en de open verbinding met de keuken. Dankzij de grote schuifpui aan de achterzijde is er veel daglicht en een prettig zicht naar de tuin. De openhaard vormt een sfeervol middelpunt en de handmatige screen en het zonnescherm zorgen voor controle over de lichtinval. De eetkamer en keuken zijn uitgebouwd, waardoor er een royale ruimte ontstaat die ideaal is voor zowel ontspanning als samenzijn. De woonkamer is voorzien van een plavuizen vloer met vloerverwarming, gestuukte wanden en een spuitwerk plafond.
Keuken: De open keuken vormt samen met de uitbouw een lichte en royale leefruimte. De grote schuifpui aan de achterzijde zorgt voor veel lichtinval. In de zomer doe je de schuifpui open en kun je heerlijk in het zonnetje zitten. Het kookeiland biedt ruimte om aan te zitten en is ideaal voor koken en samenzijn. De keuken is uitgerust met een 5-pits gasstel, afzuigkap, oven, combi-oven/magnetron (Siemens), koelkast, Quooker en vaatwasser. Ook is er een tv-aansluiting aanwezig. Verlichting onder de kasten en grote diepe lades maken de keuken praktisch en overzichtelijk. Via een deur is er directe toegang tot de inpandige berging. De keuken is afgewerkt met een plavuizen vloer, behang wanden en een spuitwerk plafond.
Eerste verdieping
Overloop: De overloop geeft toegang tot drie slaapkamers, de badkamer en de trapopgang naar de tweede verdieping. Een inbouwkast biedt extra bergruimte. De overloop heeft een marmoleum vloer, granol wanden en een spuitwerk plafond.
Slaapkamer 1: De ruime masterbedroom ligt aan de voorzijde en bestond oorspronkelijk uit twee kamers. Indien gewenst kun je het eenvoudig weer terugbrengen naar de originele staat. Dankzij de royale afmetingen is er ruimte voor een groot bed, kledingkast en bijvoorbeeld een werkplek. Er zijn diverse losse horren aanwezig die in slaapkamer één en twee gebruikt kunnen worden. De slaapkamer heeft een marmoleum vloer, behang wanden en een spuitwerk plafond.
Slaapkamer 2: Slaapkamer twee ligt aan de achterzijde en biedt veel lichtinval door het grote raam. De ruimte is praktisch ingedeeld met een wastafel en biedt voldoende plek voor een bed en kasten. De slaapkamer heeft een marmoleum vloer, behang wanden en een spuitwerk plafond.
Slaapkamer 3: Slaapkamer drie ligt aan de voorzijde boven de berging/garage en is royaal van formaat. Door het raam aan de voorzijde en het zijraam geniet je hier van voldoende lichtinval. Je kunt de kamer aanpassen naar jouw wensen en inrichten als slaapkamer. Of laat je de ruimte zo en maak je er bijvoorbeeld een speelkamer van? De vloerbedekking en gestuukte wanden vormen een neutraal geheel en het plafond is voorzien van isolatieplaten en dakbalken.
Badkamer: De keurige badkamer is volledig betegeld en beschikt over een wastafel met meubel en grote lades, ligbad, inloopdouche, toilet, design radiator en dimbare verlichting. Je kunt hier kiezen voor een frisse douche of een ontspannend bad. Elektrische vloerverwarming zorgt voor een behaaglijke temperatuur.
Tweede verdieping
Overloop: Op de tweede verdieping tref je een zeer praktische overloop aan. Momenteel is hier de opstelplaats van de Cv-ketel (2021) en een wastafelmeubel. De oude wasmachineaansluitingen zijn nog aanwezig, waardoor je hier eventueel een wasmachine kunt plaatsen. De kunststof dakkapel aan de achterzijde met screen biedt lichtinval en uitzicht. Tevens is er een raam boven het trappenhuis en richting de slaapkamer. Knieschotten zorgen voor bergruimte achter de schuine wanden.
Slaapkamer 4: Slaapkamer vier is een royale kamer met kunststof dakkapellen aan de voor- en achterzijde. De ruimte kan eventueel opgesplitst worden in twee slaapkamers. De knieschotten zorgen voor handige opbergruimte. Screens aan de voor- en achterzijde zorgen voor goede verduistering. De slaapkamer heeft een zeilvloer, behang wanden en een spuitwerk plafond.
Tuin
Voortuin: De voortuin is gelegen op het westen en heeft een oprit die ruimte biedt voor twee auto’s. De tuin is voorzien van sierbestrating, tuinborders, een zonnescherm en een screen. Beplanting zoals hortensia en lavendel zorgt voor een verzorgde uitstraling. De oprit biedt directe toegang tot de berging.
Achtertuin: De achtertuin is gelegen op het oosten en is een plek waar je op verschillende momenten van de dag van de zon kunt genieten. ‘s Ochtends schijnt het zonnetje heerlijk bij de schuifpui, perfect om met een kop koffie rustig te starten. Aan het begin van de avond valt de zon achter in de tuin, waardoor je ook later op de dag prettig buiten kunt zitten. De tuin biedt meerdere zitjes, waardoor er altijd een plek is om te ontspannen. De beplanting maakt het geheel levendig en afwisselend, met een walnotenboom, bloesemsierkers, Japanse esdoorn en pioenrozen. Er is een klein grasveldje voor spel of ontspanning en een houten schuurtje biedt praktische opslag voor bijvoorbeeld hout. Daarnaast zijn er drie elektrapunten aanwezig en is er een wateraansluiting, wat de tuin ook functioneel maakt.
Berging/garage: De inpandige berging is uiterst geschikt als opslagruimte voor bijvoorbeeld fietsen en gereedschap. Er zijn aansluitingen aanwezig voor wasmachine en droger. De berging beschikt over elektra en water en heeft een deur naar de achtertuin, wat een praktische verbinding met binnen en buiten biedt. Door het terugplaatsen van een roldeur of kanteldeur kan de berging weer als garage worden gebruikt, waardoor er ruimte ontstaat voor het parkeren van één auto.
Bijzonderheden
Het is aan de Ridderspoorhof rustig en erg fijn wonen terwijl de stedelijke voorzieningen zeer makkelijk te bereiken zijn. Zo is de woning gunstig gelegen ten opzichte van de uitvalswegen (N3 en A15), het openbaar vervoer (bushalte op loopafstand), een basisschool en ook winkelcentrum Wilgendonk ligt op loopafstand. Voor natuurliefhebbers is het Oostpolderpark te voet bereikbaar.
ALGEMEEN
Bouwjaar: 1991
Verwarming: Intergas HRE Cv-ketel (2021) + vloerverwarming gedeeltelijk (begane grond en badkamer)
Warmwatervoorziening: Intergas HRE Cv-ketel (2021)
Glas: Dubbele beglazing
Kozijnen: Houten en kunststof kozijnen