Beschrijving
Deze jonge woning uit 2016 combineert comfort met energiezuinig wonen dankzij de drie zonnepanelen en een nieuwe Cv-ketel (2025). De begane grond is licht en uitnodigend, met een woonkamer die direct toegang geeft tot de onderhoudsarme achtertuin en een nette, L-vormige keuken. Op de eerste verdieping bevinden zich drie slaapkamers en een complete badkamer. Op de tweede verdieping bevinden zich nog twee extra slaapkamers, een wasruimte en een vliering. De verzorgde tuin met het zonnescherm en de handige schuur maken het plaatje compleet. Gelegen in een kindvriendelijke wijk, met winkels, scholen, zwembad en openbaar vervoer op korte afstand, is deze woning helemaal klaar om er je nieuwe thuis van te maken.
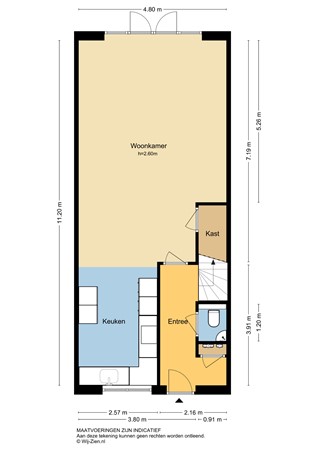
Indeling
Entree: Ruime hal met grote droogloopmat en genoeg plek voor een garderobe. Vanuit hier heb je toegang tot de meterkast, de toiletruimte, de trapopgang naar de eerste verdieping en de woonkamer. De hal is keurig afgewerkt met een parketvloer met vloerverwarming, gestuukte wanden, wanden met glasvliesbehang en een gestuukt plafond.
Meterkast: De meterkast is voorzien van 11 elektrische groepen, 3 aardlekschakelaars en een hoofdaardlekschakelaar.
Toilet: Een keurige toiletruimte, netjes afgewerkt met moderne wandtegels. De ruimte is voorzien van een zwevend toilet, een fonteintje en mechanische ventilatie. Een moderne ruimte, waar niets meer aan gedaan hoeft te worden.
Woonkamer: De begane grond is tijdens de bouw uitgebouwd, waardoor er een heerlijke, ruime woonkamer is ontstaan. Dankzij de openslaande deuren naar de tuin geniet je van veel licht en een prettige verbinding met buiten. De handige trapkast zorgt voor extra opbergruimte. Er is hier genoeg plek voor een gezellige zithoek en een eethoek richting de voorzijde van de woning. De ruimte is keurig afgewerkt met een parketvloer, wanden met (glasvlies)behang en een gestuukt plafond.
Keuken: De open keuken ligt aan de voorzijde en heeft een L-vormige opstelling. Deze is netjes onderhouden en voorzien van diverse inbouwapparatuur, waaronder een stoomoven/oven, combi-oven/magnetron, inductiekookplaat, afzuigkap, vriezer, koelkast, Quooker en een nieuwe vaatwasser. Een praktische en gezellige keuken waar je elke dag met plezier staat te koken.
Eerste verdieping
Overloop: De nette overloop is voorzien van een laminaatvloer, net als de rest van de verdieping. Vanuit hier zijn de drie slaapkamers en de badkamer toegankelijk. Alle slaapkamers beschikken over horren en rolluiken (solar), wat zorgt voor extra comfort en goede verduistering. De slaapkamers zijn keurig afgewerkt met glasvliesbehang en spuitwerkplafonds.
Slaapkamer 1: Een verrassend ruime slaapkamer aan de voorzijde van de woning. Er is voldoende plek voor een groot tweepersoonsbed. De kamer beschikt over een handige inbouwkast, ideaal om je garderobe in op te bergen.
Slaapkamer 2: Aan de achterzijde van de woning ligt deze tweede ruime slaapkamer. Deze kamer biedt de mogelijkheid voor een gezellige kinder- of tienerkamer, met voldoende ruimte voor een bureau of een speelhoekje.
Slaapkamer 3: Deze knusse slaapkamer ligt aan de achterzijde van de woning en biedt praktische bergruimte dankzij de grote inbouwkast. De kamer is multifunctioneel in te richten, bijvoorbeeld als babykamer, werkkamer of kledingkamer.
Badkamer: Een frisse badkamer volledig betegeld en voorzien van een inloopdouche, toilet, wastafelmeubel met dubbele kranen, designradiator en een raam, die ook dient voor extra natuurlijke ventilatie. Een fijne ruimte, waar je na drukke dag heerlijk kunt ontspannen.
Tweede verdieping
Overloop: Een frisse, ruime overloop met toegang tot de vliering, wasruimte en de twee slaapkamers. Dankzij de airco in het trapgat is de temperatuur goed te beheersen. De ruimte is keurig afgewerkt met een laminaatvloer, glasvliesbehang en een gipsplafond.
Slaapkamer 4: Een fijne slaapkamer met een dakraam, waardoor het daglicht mooi naar binnen valt. Er is voldoende ruimte voor een bed en een extra kast of bureau. Achter de knieschotten is handige bergruimte gecreëerd. Inbouwspots zorgen ervoor dat de kamer ook ’s avonds goed verlicht is. De ruimte is netjes afgewerkt met een laminaatvloer, (glasvlies)behang en een gipsplafond.
Slaapkamer 5: Aan de achterzijde ligt slaapkamer vijf met dakkapel, waardoor de ruimte extra licht en ruimte krijgt. Er is voldoende plek voor een bureau en een hoogslaper, waardoor de kamer ideaal is voor bijvoorbeeld een tiener. Achter de knieschotten is handige bergruimte aanwezig. Inbouwspots zorgen voor een prettige verlichting en de aanwezige rolluiken bieden extra verduistering.
Wasruimte: Een praktische ruimte met de opstelplaats voor de Cv-ketel en mechanische ventilatie. Hier is ook ruimte voor je wasmachine en droger. Het dakraam zorgt voor prettig daglicht, waardoor de ruimte aangenaam en licht aanvoelt. De kamer is netjes afgewerkt met een laminaatvloer, gestuukte wanden en een gipsplafond.
Overige verdiepingen
Vliering: De vliering is bereikbaar via een vlizotrap en biedt een ideale plek voor extra bergruimte.
Tuin
Voortuin: De verzorgd aangelegde voortuin (afm. ca. 2,0 x 5,0 m) ligt op het noordwesten en is strak ingericht met sierbestrating en moderne tuinborders, opgevuld met kiezelstenen.
Achtertuin: De achtertuin (afm. ca. 8,0 x 5,0 m) is gelegen op het zuidoosten. Door de strakke aanleg en bestrating is er volop ruimte voor een gezellige loungeset en eethoek. Dankzij het zonnescherm en een groot rolluik aan de achtergevel kun je ook op warme dagen heerlijk in de schaduw zitten, zowel binnen als buiten. De tuin is bereikbaar via een achterom. Een heerlijke, onderhoudsarme tuin om van te genieten.
Schuur: De geschakelde, houten schuur biedt praktische bergruimte voor bijvoorbeeld fietsen en gereedschap en is voorzien van elektra. De lampjes op de schuur geven de tuin een sfeervolle uitstraling in de avonden.
Bijzonderheden
De woning ligt in een fijne, kindvriendelijke wijk met veel voorzieningen in de buurt. Winkels, scholen en het zwembad liggen op korte afstand. Ook het openbaar vervoer is dichtbij, waardoor je zo onderweg bent.
ALGEMEEN
Bouwjaar: 2016
Verwarming: Intergas HRE Cv-ketel (2025) en grotendeels vloerverwarming
Warmwatervoorziening: Intergas HRE Cv-ketel (2025)
Glas: Dubbele beglazing
Kozijnen: Houten kozijnen