Beschrijving
Wegens grote belangstelling kunnen wij helaas geen bezichtigingen meer inplannen! Laat gerust je gegevens achter en wij noteren je op de geïnteresseerdenlijst.
Wat een prachtige woning! Riant, stijlvol en instapklaar is deze volledig vernieuwde en uitgebouwde twee-onder-één-kapwoning in de zeer gewilde wijk De Wilgendonk. De ruime en lichte woonkamer met keramische vloer, elektrische haard en driedubbele openslaande deuren naar de achtertuin geeft een luxueuze uitstraling. De moderne designkeuken is voorzien van de nieuwste apparatuur, een wijnklimaatkast, Quooker en op maat gemaakte kasten. Aansluitend bevindt zich een multifunctionele ruimte, ideaal als thuiswerkplek, speelkamer of extra zitkamer. De maatwerk niskasten met dimbare inbouwspots bieden hier extra bergruimte en sfeervolle uitstraling. Op de eerste verdieping bevindt zich een ruime slaapkamer, ontstaan uit twee samengevoegde kamers, voorzien van airconditioning en grote raampartij. Daarnaast is er een tweede slaapkamer en een luxe badkamer met Whirlpool ligbad, inloopdouche en dubbele wastafel. De tweede verdieping biedt een royale extra kamer met Velux-dakramen en praktische bergruimte. Ook buiten zet het woongenot zich voort. Via de openslaande deuren stap je de ruime achtertuin op het zuidoosten in, waar rust, privacy en groen je omringen. De voortuin biedt plek voor twee auto’s en de ligging is ideaal: rustig, kindvriendelijk en scholen, winkels en openbaar vervoer op loopafstand, evenals diverse uitvalswegen. Word jij binnenkort eigenaar van deze prachtige woning?
Indeling
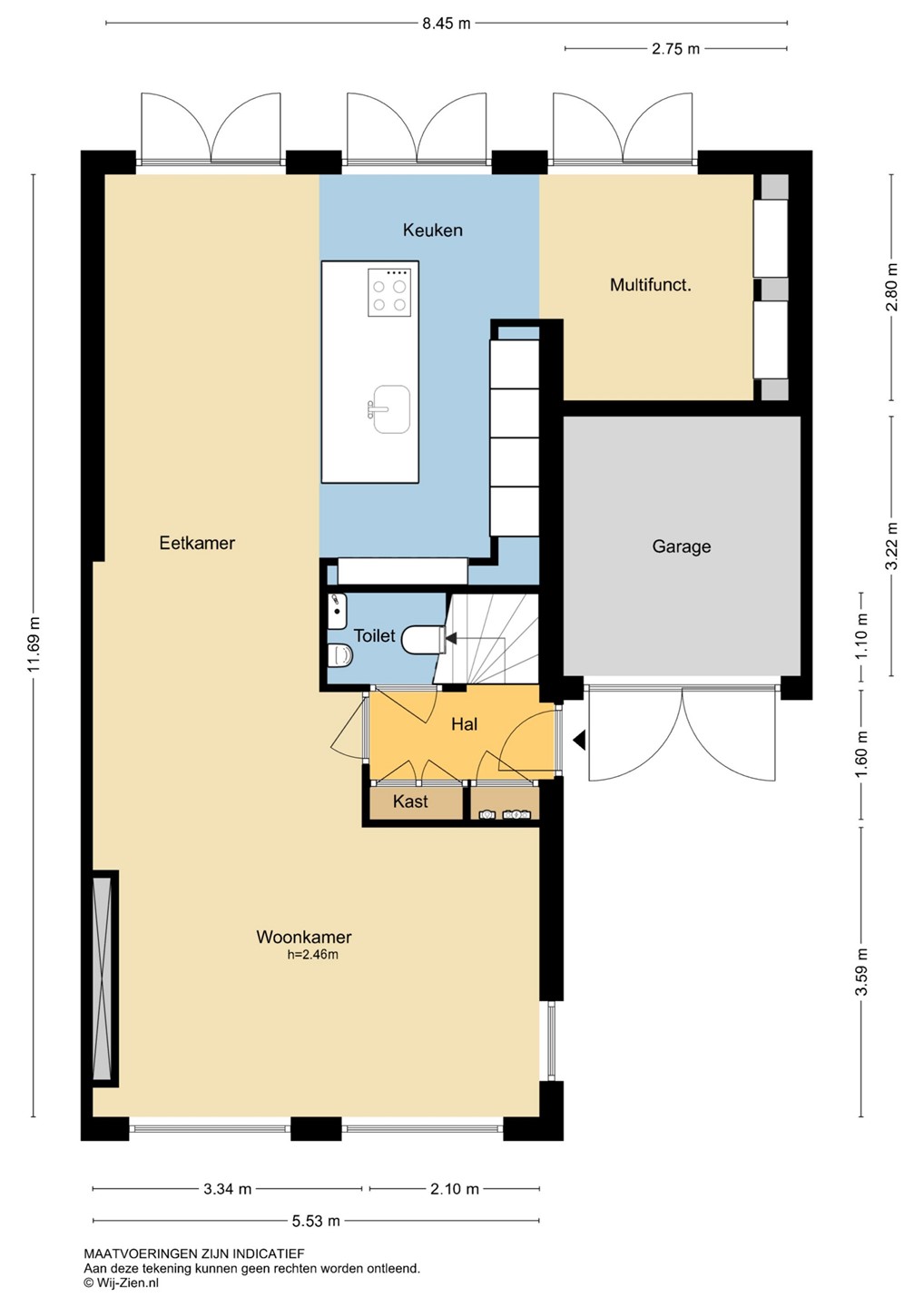
Entree: De prachtige hal met inbouwkasten en taatsdeur naar de woonkamer zorgt voor een warme binnenkomer. De voordeur is zeer speciaal van het merk Hörmann. Deze deur is extra energiezuinig en houdt de kou goed buiten. De brievenbus is daarom verplaatst naar de garagedeur. De hal geeft toegang tot de toiletruimte, meterkast, woonkamer en de trapopgang naar de eerste verdieping.
Meterkast: De vernieuwde meterkast is voorzien van 16 elektrische groepen (incl. 3 fornuisgroepen), een aardlekschakelaar en een hoofdaardlekschakelaar.
Toilet: Ook de toiletruimte is vernieuwd en beschikt over een zwevend closet, urinoir, wastafel, spiegel met verlichting, inbouwspots en mechanische ventilatie.
Woonkamer: Wat een heerlijk lichte en ruime woonkamer! Vanaf de bank kijk je vrij weg en voel je direct de rust en openheid van de ruimte. De keramiek vloer, gestuukte wanden en plafond vormen samen een stijlvolle, moderne basis. De cinemawall met elektrische haard creëert een warme, gezellige sfeer en is een echte eyecatcher in de woonkamer. Dankzij de driedubbele openslaande deuren naar de tuin geniet je van een naadloze overgang tussen binnen en buiten. De aluminium kozijnen met HR++-glas zorgen voor optimale isolatie. Voor extra comfort en privacy is er buitenzonwering aan de voorzijde, zodat je de sfeer eenvoudig kunt afstemmen op het moment van de dag. De woonkamer voelt direct uitnodigend en is perfect voor ontspanning, samenzijn en gezellige avonden met familie en vrienden.
Keuken: Wat een droomkeuken! Deze prachtige, open keuken is niet alleen stijlvol maar ook heel praktisch en volledig uitgerust. Het spoel- en kookeiland vormt het hart van de ruimte, met veel werk- en opbergruimte voor alle kookactiviteiten. De keuken is voorzien van 2x een Bosch oven/combi (met Airfry, garen, stomen etc.), de nieuwste Quooker voor direct kokend water en een wijnklimaatkast waarbij je de temperatuur per boven- en ondergedeelte kunt instellen. Daarnaast zijn er een koel-/vriescombinatie, vaatwasser en inductiekookplaat met geïntegreerde afzuiging aanwezig. Alle kasten zijn maatwerk, perfect afgestemd op de ruimte en stijl van de woning. Diverse meubels zijn ter overname, waardoor je de keuken direct compleet kunt gebruiken.
Overige ruimte: Achter de keuken vind je een compacte, veelzijdige ruimte die je naar eigen inzicht kunt gebruiken. Open blijft het een ideale plek voor een thuiswerkplek of kantoor, maar de ruimte kan ook dienen als extra opbergruimte of speelplek. Deze kamer is ontstaan doordat een deel van de garage bij de woning is getrokken. Mooie nisjes met op maat gemaakte meubels voegen sfeer en praktische opbergruimte toe. De gehele verdieping is afgewerkt met een prachtige keramiek vloer van Jeffrey Opree, die de ruimte een luxe en stijlvolle uitstraling geeft.
Eerste verdieping
Overloop: De ruime overloop is afgewerkt met mooi behang en heeft veel lichtinval door het raam (met rolluik). De overloop geeft toegang tot de slaapkamers, badkamer en trapopgang naar de tweede verdieping.
Slaapkamer 1: De masterbedroom is ontstaan door het samenvoegen van twee kamers, waardoor er veel ruimte is. De kamer is voorzien van een rolluik en airconditioning, waardoor je altijd het perfecte comfort hebt. Het Franse balkon voegt extra sfeer en licht toe en de prachtig op maat gemaakte inbouwkasten bieden veel opbergruimte. Eventueel kan deze ruimte weer worden teruggebracht naar twee kamers, zodat er vier slaapkamers gerealiseerd kunnen worden.
Slaapkamer 2: De slaapkamer aan de achterzijde van de woning is een fijne, ruime kamer met een keurige afwerking. De kamer is voorzien van een rolluik en airconditioning.
Badkamer: De moderne badkamer is een echte plek om te ontspannen en tot rust te komen. De ruimte is deels betegeld met witte tegels en heeft stijlvolle houtlook accenten. De badkamer is voorzien van een dubbele waskom, een ligbad met Whirlpool, een inloopdouche, een zwevend closet en mechanische ventilatie. Voor extra comfort is er elektrische vloerverwarming en een elektrisch bedienbaar Velux dakraam, eenvoudig te openen of sluiten met de afstandsbediening.
Tweede verdieping
Overloop: Op deze overloop bevinden zich de Cv-ketel en mechanische ventilatie, evenals de aansluitingen voor wasmachine en droger. Het Velux dakraam zorgt voor veel lichtinval. Vanuit deze ruimte heb je tevens toegang tot een slaapkamer.
Slaapkamer 3: Slaapkamer drie is een ruime kamer onder de nok met twee Velux dakramen, waardoor er veel daglicht binnenkomt. De bruine balken geven de kamer een warme en karakteristieke uitstraling. De knieschotten zorgen voor handige opbergruimte. De kamer is ideaal als slaap-/logeerkamer.
Tuin
Voortuin: Nette voortuin (afm. ca. 3.80 x 5.50) welke onderhoudsvrij is aangelegd met mooie sierbestrating. De tuin heeft een flinke oprit (afm. ca. 9.80 x 3.00) met plek voor twee auto’s. Veel bezoek aan huis? Aan de overkant kan ook nog geparkeerd worden. De tuin is voorzien van een zonnescherm en wateraansluiting.
Achtertuin: Grote achtertuin (afm. ca. 9.70 x 9.00) gelegen op het zuidoosten. In de zomer staan de bloemen in de borders vol in bloei en net achter de schutting staan twee grote loofbomen. Dat is gegarandeerd groen uitzicht! De volledig vernieuwde achtergevel zorgt voor een stijlvolle uitstraling, met dimbare inbouwspots boven de openslaande deuren en een vernieuwde waterafvoer en elektra aansluitpunten in bijpassende kleur.
Garage: Een handige, compacte garage met vliering voor extra opbergruimte. Hier bevindt zich de omvormer van de zonnepanelen en de waterontharder. De garage is voorzien van Hörmann-deuren en elektra. Ideaal bijvoorbeeld om fietsen of andere spullen veilig en droog te stallen.
Bijzonderheden
De Campanulahof 27 staat in een ruim opgezette woonwijk dichtbij diverse voorzieningen zoals winkels, restaurants en scholen. Een fijne centrale ligging.
ALGEMEEN
Bouwjaar: 1991
Verwarming: Vaillant Cv-ketel (2022)
Warmwatervoorziening: Vaillant Cv-ketel (2022)
Glas: Dubbele beglazing
Kozijnen: Aluminium, houten en kunststof kozijnen
Zonnepanelen: 12 stuks