Beschrijving
Deze ruime, instapklare hoekwoning uit 2002 is ideaal voor een gezin en bevindt zich in een rustige, kindvriendelijke woonwijk. De woning beschikt over zes slaapkamers, een nette afwerking en een energielabel A, én is uitgerust met maar liefst elf zonnepanelen voor extra energiezuinig wonen. Bovendien is de garage met zolder een hele fijne toevoeging!
Indeling
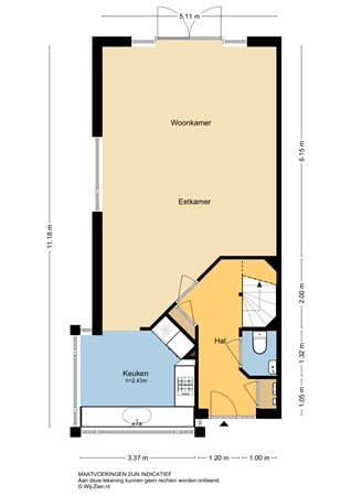
Entree: Je stapt de woning binnen in een ruime hal. De hal geeft toegang tot een inbouwkast met de cv-ketel, meterkast, toiletruimte, trapopgang en de woonkamer. De hal is afgewerkt met een plavuizen vloer, glasvlies behang wanden en een spuitwerk plafond.
Meterkast: 9 elektrische groepen, 3 aardlekschakelaars en een hoofdaardlekschakelaar
Toilet: Het toilet is strak afgewerkt in een neutrale kleurstelling en voorzien van een staand toilet, wastafel met fonteintje en mechanische ventilatie.
Woonkamer: De woonkamer is een lichte, uitnodigende ruimte waar je je direct thuis voelt. Openslaande deuren bieden een prachtig zicht op de tuin en ook het zijraam laat het daglicht binnenstromen. Voor extra comfort is er vloerverwarming aanwezig. De woonkamer is afgewerkt met een plavuizen vloer, spuitwerk plafond en glasvlies behang wanden.
Keuken: De keuken bevindt zich aan de voorzijde van de woning, met ramen naar de straat en zijkant: zo zie je je gasten al aankomen. De moderne keuken is volledig uitgerust met een 4-pits gasstel, afzuigkap, oven/magnetroncombinatie, koel-/vriescombinatie en vaatwasser. Alles wat je nodig hebt voor een culinaire ervaring in je eigen huis.
Eerste verdieping
Overloop: Ruime overloop met toegang tot een losse toiletruimte, drie slaapkamers en de badkamer. De laminaatvloer die hier ligt, lig over de hele verdieping. De wanden zijn afgewerkt met glasvlies behang en het plafond met spuitwerk.
Slaapkamer 1: Fijne slaapkamer aan de voorzijde van de woning. De kamer is afgewerkt met een laminaat vloer, glasvlies behang wanden en een spuitwerk plafond.
Slaapkamer 2: Ruime master bedroom gelegen aan de achterzijde van de woning. Deze slaapkamer beschikt over een grote vaste kast en is afgewerkt met een laminaat vloer, glasvlies behang wanden en een spuitwerk plafond.
Slaapkamer 3: De slaapkamer aan de achterzijde van de woning biedt directe toegang tot het brede balkon op het westen. Hier kan je ’s ochtends genieten van de eerste zonnestralen. De kamer is voorzien van horren bij de ramen, waardoor frisse lucht binnenkomt zonder dat insecten binnenvliegen. Het balkon loopt over de gehele breedte van de woning. De kamer is afgewerkt met een laminaat vloer, glasvliesbehang wanden en een spuitwerk plafond.
Badkamer: De volledig betegelde badkamer is een echte blikvanger. Hier geniet je van een luxueuze inloopdouche en een ligbad, ideaal voor ontspanning na een drukke dag. De zwarte opbouwkranen, het stalen frame van de douchedeur en de zwarte designradiator geven de ruimte uitstraling. Het houtlook wastafelmeubel met geïntegreerde wastafel biedt praktische opbergruimte, terwijl het raam zorgt voor volop natuurlijk licht. Dankzij de mechanische ventilatie blijft de badkamer altijd fris en comfortabel.
Toiletruimte: Keurig toiletruimte in een neutrale kleurstelling. De ruimte beschikt over een zwevend toilet en mechanische ventilatie.
Tweede verdieping
Overloop: De ruime overloop op de tweede verdieping is licht en luchtig dankzij het dakraam. Hier is ruimte voor de wasmachine en droger. Vanuit de overloop is er via een vlizotrap toegang tot een handige bergzolder, waar ook de omvormer van de zonnepanelen is geplaatst. De laminaatvloer loopt door over de hele verdieping, wat zorgt voor een uniforme uitstraling. De overloop geeft toegang tot drie ruime slaapkamers.
Slaapkamer 4: Deze slaapkamer ligt aan de voorzijde van de woning. De kamer beschikt over een dakraam. Er is genoeg ruimte voor een eenpersoonsbed en een kledingkast. Achter de knieschotten is opbergruimte aanwezig. De kamer is afgewerkt met een laminaat vloer, glasvlies behang wanden en een gips plafond.
Slaapkamer 5: Ruime slaapkamer gelegen aan de achterzijde van de woning. De kamer beschikt over een dakkapel en een zijraam, waardoor er genoeg ruimte en licht aanwezig is. De kamer is afgewerkt met een laminaat vloer, glasvliesbehang wanden en een gips plafond.
Slaapkamer 6: Ook slaapkamer 6 is een fijne kinderkamer en beschikt over een dakkapel. De kamer is afgewerkt met een laminaat vloer, glasvlies behang wanden en een gips plafond.
Tuin
Voortuin: De verzorgde voortuin ligt op het oosten en is fraai aangelegd met een mooie bolboom en een groen gazon. Er is een handige wateraansluiting aanwezig. Boven de voordeur bevindt zich een overstek, waardoor je droog kunt staan als je bij regen je sleutels zoekt.
Achtertuin: De keurige achtertuin op het westen is fraai aangelegd met sierbestrating en tuinborders. De tuin is via een achterom bereikbaar. Onder de overkapping stap je direct de tuin in. De overkapping is ideaal voor het stallen van fietsen. Daarnaast is de tuin voorzien van elektra en heeft een diepte van ca. 10 meter.
Zijtuin: Aan de zijkant van de woning bevindt zich een strook grond, waarop momenteel een houten opslagcabine is geplaatst. Dit biedt extra opslagruimte en is ideaal voor het plaatsen van bijvoorbeeld containers.
Garage: De garage is ruim en beschikt over een elektrische roldeur, wateraansluiting en verwarming. Daarnaast kan je via een vaste trap naar de zolder. Hier is ook daglicht aanwezig via een dakraam. De zolderverdieping biedt extra opslagruimte maar is ook ideaal als hobbyruimte.
Bijzonderheden
De woning bevindt zicht in een geliefde, rustige en kindvriendelijke woonwijk. Praktische voorzieningen zoals scholen, OV, een supermarkt, speeltuintjes en sportvoorzieningen zijn op korte afstand aanwezig.
ALGEMEEN
Bouwjaar: 2002
Verwarming: Remeha Calenta 40 c 2014 + vloerverwarming gedeeltelijk (begane grond)
Warmwatervoorziening: Remeha Calenta 40 c Cv-ketel (2014)
Glas: Dubbele beglazing
Kozijnen: Houten kozijnen
Zonnepanelen: 11 stuks