Beschrijving
Deze instapklare tussenwoning is écht een fijne gezinswoning te noemen. De zonnige woonkamer met openslaande deuren naar de tuin vormt het middelpunt van de woning en staat in open verbinding met de moderne keuken voorzien van luxe inbouwapparatuur. Op de eerste verdieping vind je drie slaapkamers en een complete badkamer met ligbad, douche en toilet. De tweede verdieping biedt een royale voorzolder en een sfeervolle vierde slaapkamer met zowel een dakkapel als een dakraam. Dankzij de recent aangelegde achtertuin met terras en vlonder aan het water geniet je hier volop van het buitenleven. Met vier slaapkamers, keurige afwerking en een rustige ligging is dit een woning waar je direct kunt intrekken en jarenlang woonplezier ervaart.
Indeling
Entree: Zodra je de woning binnenstapt, kom je in de ruime hal met genoeg ruimte voor je jassen, schoenen en tassen. De meterkastdeur is voorzien van een grote spiegel, handig om nog even je kapsel of outfit te checken, voordat je de deur uitgaat. De hal krijgt extra charme door de trap met Portugese tegels. Vanuit de hal heb je toegang tot het toilet en de woonkamer.
Meterkast: Meterkast met 8 elektrische groepen, een aardlekschakelaar en hoofdaardlekschakelaar.
Toilet: Een nette toiletruimte met een hint naar Portugal, dankzij de prachtige tegelvloer. De steigerhouten ombouw om de wastafel geeft de ruimte een warme uitstraling en komt sfeervol terug in de wandplanken in de nis. De ruimte is voorzien van een zwevend toilet en mechanische ventilatie.
Woonkamer: De tuingerichte woonkamer is heerlijk licht en heeft openslaande deuren naar de achtertuin, zo haal je het buitenleven echt naar binnen. De ruime aanbouw zorgt voor extra leefruimte en de trapkast zorgt voor extra bergruimte. De begane grond is voorzien van airconditioning. Vanuit de woonkamer loop je door naar de moderne keuken. De ruimte is keurig afgewerkt met een spuitwerk plafond, gestuukte wanden en een laminaatvloer.
Keuken: Een strakke, praktische en moderne keuken! De keuken uit 2021 is opgesteld in U-vorm en afgewerkt met een marmerlook werkblad. Hier kook je met alle luxe die je wenst: een oven/magnetron combinatie, afzuigkap, koel-/vriescombinatie, 5-pits gasstel, Quooker en de wijnkoeler maakt de luxe compleet. Er is veel bergruimte aanwezig en door het raam kijk je leuk uit op de autovrije straat.
Eerste verdieping
Overloop: De overloop biedt toegang tot drie slaapkamers, de badkamer en de trapopgang naar de tweede verdieping. De hele verdieping is netjes afgewerkt met een laminaatvloer, gestuukte wanden en een spuitwerk plafond. De doorlopende vloer zorgt voor een rustig en samenhangend geheel.
Slaapkamer 1: Keurige slaapkamer aan de voorzijde van de woning, met een open garderobehoek om je kleding netjes op te bergen. De kamer is voorzien van een rolluik en airconditioning, wat zorgt voor comfort en een aangename temperatuur.
Slaapkamer 2: Gezellige slaapkamer aan de achterzijde, met een dakkapel die voor extra lichtinval zorgt. Achter de knieschotten is handige opbergruimte gecreëerd. Ook deze kamer beschikt over een rolluik.
Slaapkamer 3: Knusse slaapkamer met dakkapel en een ingebouwde kast, ideaal voor garderobe of extra opbergruimte. De kamer ligt aan de achterzijde en is voorzien van een rolluik.
Badkamer: De praktisch ingedeelde badkamer is van alle gemakken voorzien. Het moderne wastafelmeubel geeft een eigentijdse toevoeging. De ruimte beschikt over een toilet, ligbad met douchegelegenheid, design radiator, een meubel met geïntegreerde wastafel en mechanische ventilatie.
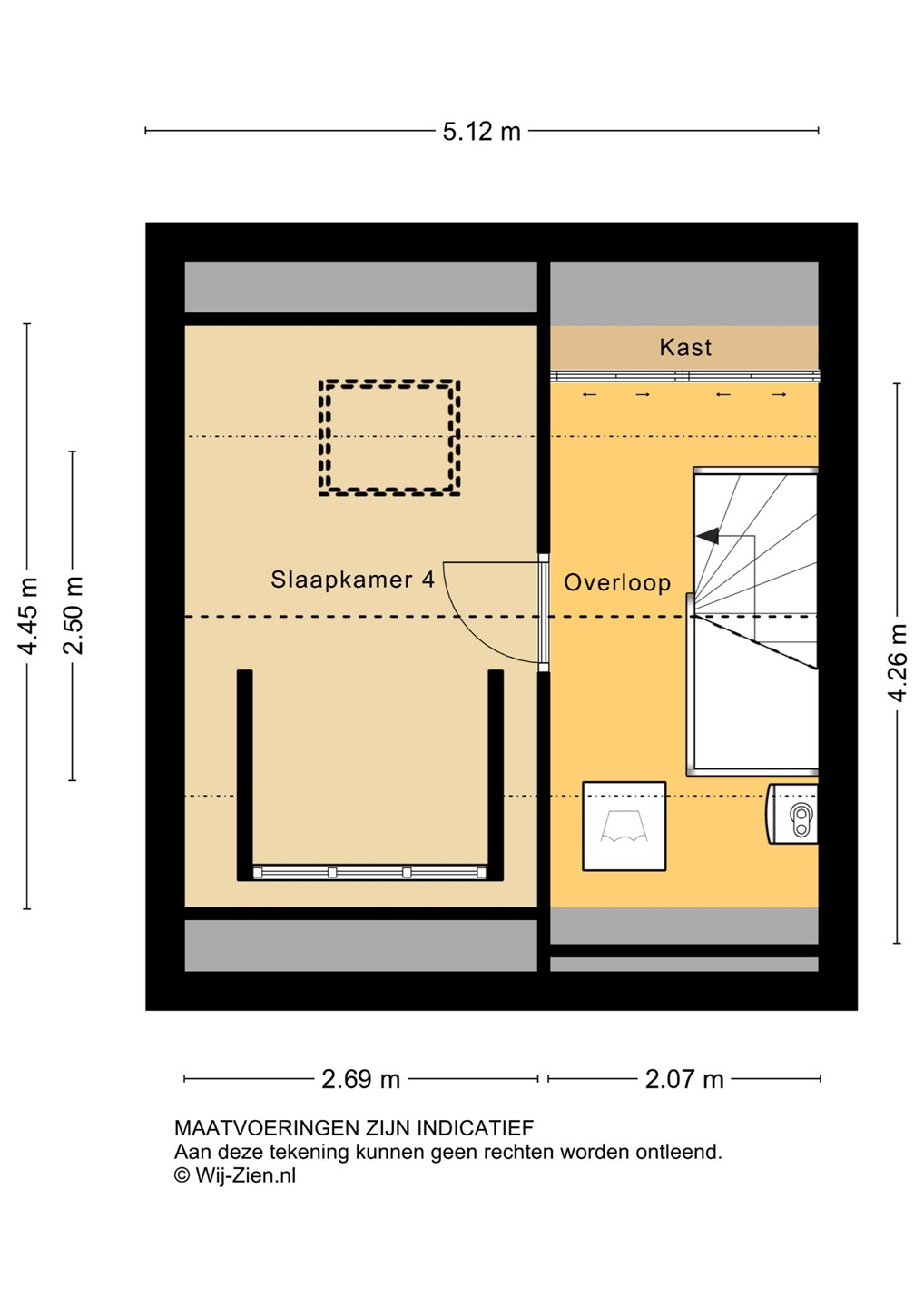
Tweede verdieping
Voorzolder: Royale en hoge voorzolder met volop ruimte om de was te doen en spullen op te bergen, zoals schaatsen of vakantiespullen. Hier vind je ook de Cv-ketel, de omvormer van de zonnepanelen en de aansluitingen voor wasmachine en droger. Via een deur loop je zo naar slaapkamer vier. De ruimte is netjes afgewerkt met een laminaatvloer, gestuukte wanden en een gipsplafond, waardoor het een frisse en lichte indruk maakt.
Slaapkamer 4: Lichte en gezellige zolderkamer met een dakkapel aan de voorzijde en een Velux dakraam aan de achterzijde, waardoor er volop daglicht binnenkomt. De knieschotten aan beide zijden bieden handige opbergruimte. De airconditioning zorgt voor een behaaglijke temperatuur. De ruimte is afgewerkt met een laminaatvloer, gipsplafond en voorzien van een rolluik.
Tuin
Voortuin: Onderhoudsvriendelijke voortuin (afm. ca. 3,00 x 3,22) met nieuwe sierbestrating en heeft een luifel boven de voordeur, handig bij regen of als je net even je sleutel zoekt. De voortuin biedt ook toegang tot de stenen berging.
Achtertuin: Strak en nieuw aangelegde achtertuin (afm. ca. 6,35 x 5,08) met een heerlijk terras en een mooie, houten vlonder aan het water. Hier kun je in alle rust genieten van het buitenleven en gezellige avonden organiseren met vrienden of familie.
Schuur: Aanpandige stenen schuur aan de voorzijde van de woning, ideaal voor het opbergen van fietsen, gereedschap of andere spullen. De schuur is voorzien van elektra.
Bijzonderheden
De Willem Dreeshof heeft een gunstige en kindvriendelijke ligging in een autoluwe woonwijk. Voor de kinderen is het een feest om hier te spelen. Ook het centrum van het dorp ligt op loopafstand van de woning. Alle voorzieningen zijn in de buurt te vinden, van een basisschool tot recreatiegebied het Lammetjeswiel.
ALGEMEEN
Bouwjaar: 1990
Verwarming: Remeha Avanta Cv-ketel (2013)
Warmwatervoorziening: Remeha Avanta Cv-ketel (2013)
Glas: Grotendeels dubbele beglazing
Kozijnen: Houten kozijnen