Beschrijving
Stap binnen in deze zeer nette tussenwoning die op de begane grond in 2024 compleet is verbouwd. Je ervaart hier direct een moderne vibe dankzij de luxe keuken met Quooker en de comfortabele vloerverwarming. De lichte doorzonwoonkamer vormt het hart van het huis en staat in directe verbinding met de diepe achtertuin op het zuidoosten. Met drie nette slaapkamers op de eerste verdieping en een volledig geïsoleerde zolderkamer is er aan ruimte geen gebrek. Nagenoeg de gehele woning is in 2017 en 2024 voorzien van HR++ beglazing, wat zorgt voor optimaal wooncomfort. De badkamer is functioneel ingericht en biedt een uitstekende basis om naar eigen wens te moderniseren. Aan de voorzijde grenst de woning direct aan een leuk speeltuintje, ideaal voor een gezin met kinderen. Je woont hier op een toplocatie en op korte afstand van de polder. Een instapklaar huis op de begane grond met een fantastische ligging in de wijk Blokweer!
Indeling
Entree: Bij binnenkomst in de hal ervaar je direct de frisse, moderne uitstraling. Vanuit de hal heb je toegang tot de toilet, meterkast, woonkamer en trapopgang naar de eerste verdieping. Deze ruimte is strak afgewerkt met een PVC-vloer, glad gestuukte wanden en een spuitwerkplafond.
Meterkast: De meterkast is voorzien van 11 elektrische groepen, een aardlekschakelaar en een hoofdaardlekschakelaar. Er is ruimte voor uitbreiding en de meterkast is voorbereid om zonnepanelen aan te sluiten.
Toilet: De toiletruimte is uitgevoerd in een moderne stijl. Je beschikt hier over een zwevend toilet, een fonteintje, inbouwspots en mechanische ventilatie. Deze ruimte is strak afgewerkt met stucwerk.
Woonkamer: De doorzonwoonkamer vormt het hart van de begane grond. Je ziet direct dat de gehele ruimte in 2024 volledig is gerenoveerd met oog voor kwaliteit en detail. Dankzij de nieuwe vloerverwarming die over de gehele verdieping ligt, geniet je hier van een comfortabel binnenklimaat. De grote raampartijen, nu volledig voorzien van nieuwe HR++ beglazing, zorgen voor een prachtige lichtinval. Een praktische trapkast biedt bovendien slimme opbergruimte uit het zicht. De open verbinding met de keuken creëert een ruimtelijk effect en een fijne flow in huis. Deze ruimte is strak afgewerkt met een PVC-vloer, glad gestuukte wanden en een spuitwerkplafond.
Keuken: In de open keuken uit 2024 komen design en functionaliteit samen. Deze strakke ruimte is uitgevoerd in een tijdloze, neutrale kleurstelling en nodigt direct uit tot uitgebreid koken. Je beschikt hier over topapparatuur, waaronder een inductiekookplaat met geïntegreerde afzuiging, een Quooker en een moderne oven. De koelkast, vriezer en vaatwasser zijn naadloos ingebouwd. Via de achterdeur betrek je de tuin eenvoudig bij je leefruimte.
Eerste verdieping
Overloop: De overloop biedt toegang tot de drie slaapkamers en de badkamer. Deze ruimte is verzorgd afgewerkt met een laminaatvloer, gestuukte wanden en een spuitwerkplafond. Doordat de laminaatvloer is doorgelegd over de gehele verdieping, vormt dit een samenhangend geheel. De slaapkamers zijn verder keurig afgewerkt met behangwanden en een spuitwerkplafond.
Slaapkamer 1: Deze kamer ligt aan de voorzijde van de woning en geniet van een prettige, natuurlijke lichtinval. Je kunt de zoninval hier eenvoudig naar wens reguleren dankzij de aanwezige screen. Het is een ideale kinder- of tienerkamer met meer dan voldoende ruimte voor zowel een bed als een bureau.
Slaapkamer 2: Aan de rustige achterzijde bevindt zich de royale tweede slaapkamer. Ook hier geniet je van extra comfort op zonnige dagen door de praktische screen. De kamer biedt volop de ruimte voor een comfortabel tweepersoonsbed en een grote kledingkast.
Slaapkamer 3: De derde kamer op deze verdieping is een fijne, compacte ruimte die zich perfect leent als kantoor aan huis, hobbykamer of babykamer. Ook is hier HR++ glas aanwezig.
Badkamer: De badkamer is ruim opgezet en functioneel ingericht. Je hebt hier de beschikking over een inloopdouche, een wastafelmeubel en een tweede toilet. Ook een designradiator en mechanische ventilatie zijn aanwezig.
Tweede verdieping
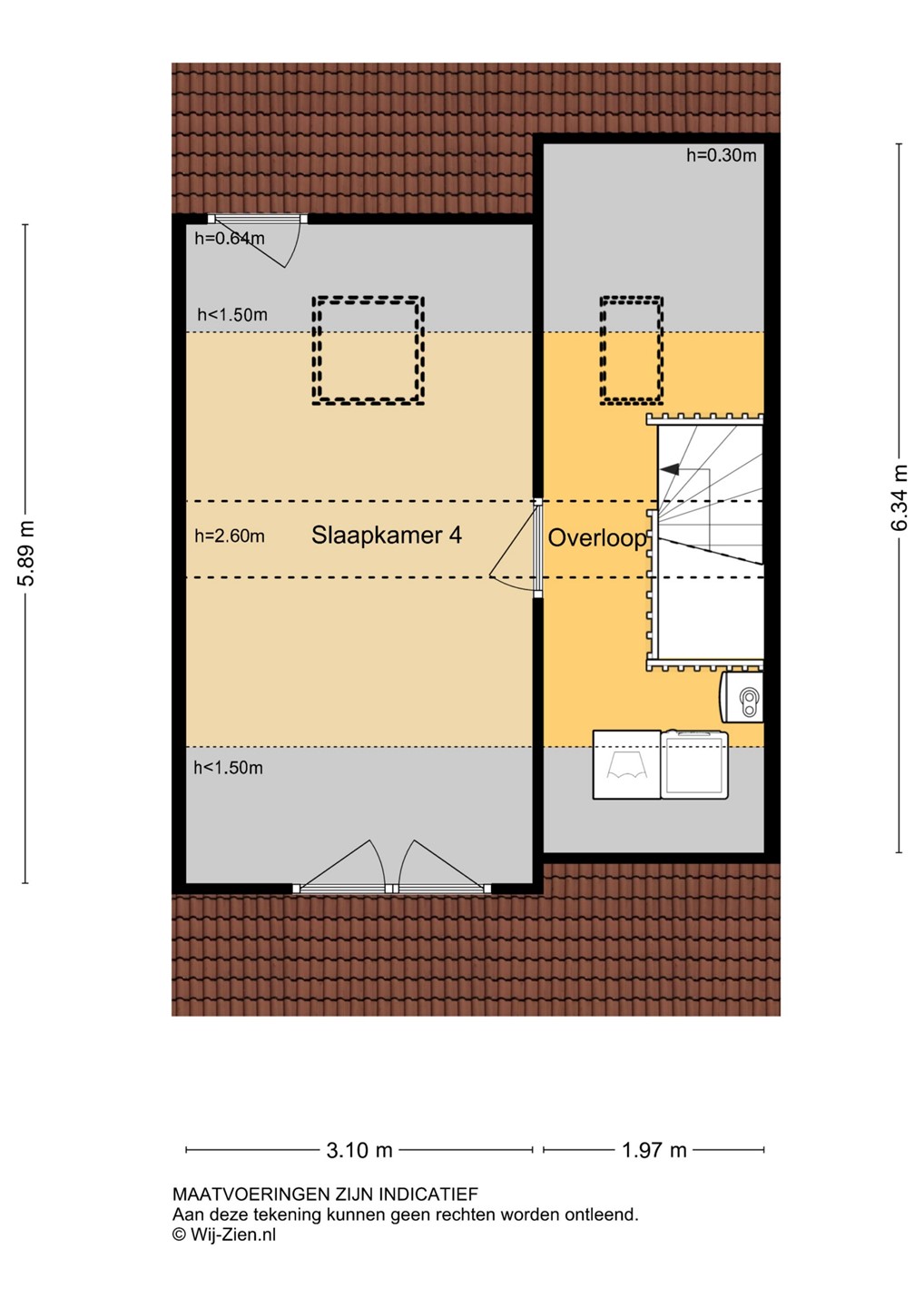
Voorzolder: Op de voorzolder bevindt zich de opstelplaats voor de Cv-ketel en vind je de aansluitingen voor de wasmachine en droger. Deze ruimte is keurig afgewerkt met een laminaatvloer, behangwanden en een spuitwerkplafond.
Slaapkamer 4: De vierde slaapkamer is een volwaardige kamer met een groot Velux dakraam dat zorgt voor veel natuurlijk licht. Dit is een ideale plek als extra slaapkamer of rustige werkplek. Deze ruimte is keurig afgewerkt met een laminaatvloer, behangwanden en een spuitwerkplafond.
Tuin
Voortuin: De voortuin (afm. ca. 5,00 x 5,20 m) is gelegen op het noordwesten en maakt een verzorgde, groene indruk. De eyecatcher is de prachtige magnolia. De tuin is ingericht met een combinatie van sierbestrating en diverse plantenborders. Ook is hier elektra en een watervoorziening aanwezig.
Achtertuin: In deze diepe achtertuin (ca. 11,00 x 5,20 m) op het zuidoosten geniet je de hele dag van de zon. Het is een heerlijke plek met een fijn zonneterras waar je in alle rust kunt ontspannen. De tuin is met zorg onderhouden en biedt een mooie variatie aan beplanting en sierbestrating. Voor optimaal gemak is er een watervoorziening, elektra en een screen aanwezig. Dankzij de praktische achterom is de tuin ook met de fiets goed bereikbaar.
Schuur: Achter in de tuin staat een mooie, vrijstaande houten schuur die voorzien is van elektra. Het is de ideale, praktische ruimte voor het stallen van fietsen of het opbergen van tuingereedschap.
Bijzonderheden
Het Schrijvertje ligt op een fantastische locatie dicht bij de winkels (“de Touwbaan”), maar je bent ook zo in de polder. De voortuin grenst aan een speeltuintje, is voorzien van veel privacy en is gelegen in een hele fijne wijk!
ALGEMEEN
Bouwjaar: 1987
Verwarming: Intergas Cv-ketel (2011) + vloerverwarming gedeeltelijk (begane grond)
Warmwatervoorziening: Intergas Cv-ketel (2011)
Glas: Dubbele beglazing (HR++)
Kozijnen: Houten en kunststof kozijnen