Beschrijving
Wil je wonen in een verzorgde woning met veel ruimte en licht? Deze eengezinswoning beschikt over vier slaapkamers en een ruime achtertuin. Op de begane grond vind je een doorzon woonkamer met sfeerhaard en een gesloten keuken die nog mogelijkheden biedt voor vernieuwing. De eerste verdieping biedt drie slaapkamers en een badkamer en de tweede verdieping biedt een grote, lichte zolderruimte. De achtertuin ligt op het oosten en is voorzien van een grote schuur en een achterom. De woning ligt aan een rustig straatje in Alblasserdam, op korte afstand van scholen en winkels.
Indeling
Entree: Je komt de woning binnen via de hal, die overzichtelijk toegang biedt tot de trapkast, het toilet, de woonkamer en de keuken. De hal is afgewerkt met een laminaatvloer, behangwanden en een gips plafond.
Meterkast: De meterkast is voorzien van 9 stoppen, een aardlekschakelaar en een hoofdaardlekschakelaar.
Toilet: Het toilet is eenvoudig afgewerkt en voorzien van een staand toilet.
Woonkamer: De doorzon woonkamer is licht en ruim, met een gezellige sfeer die direct uitnodigt om te ontspannen. Er is een sfeerhaard aanwezig. Voorzieningen zoals rolluiken aan zowel de voor- als achterzijde zorgen voor comfort en privacy. De indeling biedt voldoende plek voor een zithoek aan de voorzijde en een eethoek aan de achterzijde. De woonkamer is afgewerkt met een laminaatvloer, gestuukte wanden en een gips plafond.
Keuken: De keuken is gesloten en ligt aan de achterzijde van de woning, met een deur naar de achtertuin. Hoewel gedateerd, is de keuken van uitstekende kwaliteit en volledig functioneel. De keuken is uitgerust met een 4-pits gasstel, afzuigkap, vriezer en een close-in-boiler. Door de indeling is er voldoende werkruimte en bergruimte aanwezig. Het contact met de achtertuin zorgt voor lichtinval en een prettige sfeer. Voor wie de voorkeur geeft aan een open woongevoel, biedt de indeling de mogelijkheid om de keuken open te maken naar de woonkamer.
Eerste verdieping
Overloop: De overloop heeft twee vaste kasten en geeft toegang tot drie slaapkamers, de badkamer en de trapopgang naar de tweede verdieping. In een vaste kast kun je bijvoorbeeld een wasmachine plaatsen. De overloop is afgewerkt met vloerbedekking, behangwanden en een gips plafond.
Slaapkamer 1: Slaapkamer één ligt aan de achterzijde van de woning en is ruim van formaat. De kamer biedt voldoende ruimte voor een bed, bureau en kledingkast. Dankzij de hor kun je hier zorgeloos ventileren. Alle slaapkamers op deze verdieping zijn afgewerkt met vloerbedekking, behangwanden en een gipsplafond.
Slaapkamer 2: Slaapkamer twee is gelegen aan de achterzijde, met uitzicht op de tuin. De kamer heeft een handige vaste kast voor het opbergen van je kleding. De kamer is geschikt als master bedroom.
Slaapkamer 3: Slaapkamer drie is een nette slaapkamer aan de voorzijde van de woning. Met het rolluik kun je de ruimte goed verduisteren. Ook deze kamer is voorzien van een vaste kast.
Badkamer: De badkamer is gedateerd en toe aan vernieuwing. Momenteel is er voldoende ruimte voor de standaard voorzieningen zoals douche, wastafel en toilet. Voor wie een grotere badkamer wil creëren, is het eenvoudig mogelijk om een stukje van de aangrenzende slaapkamer te gebruiken.
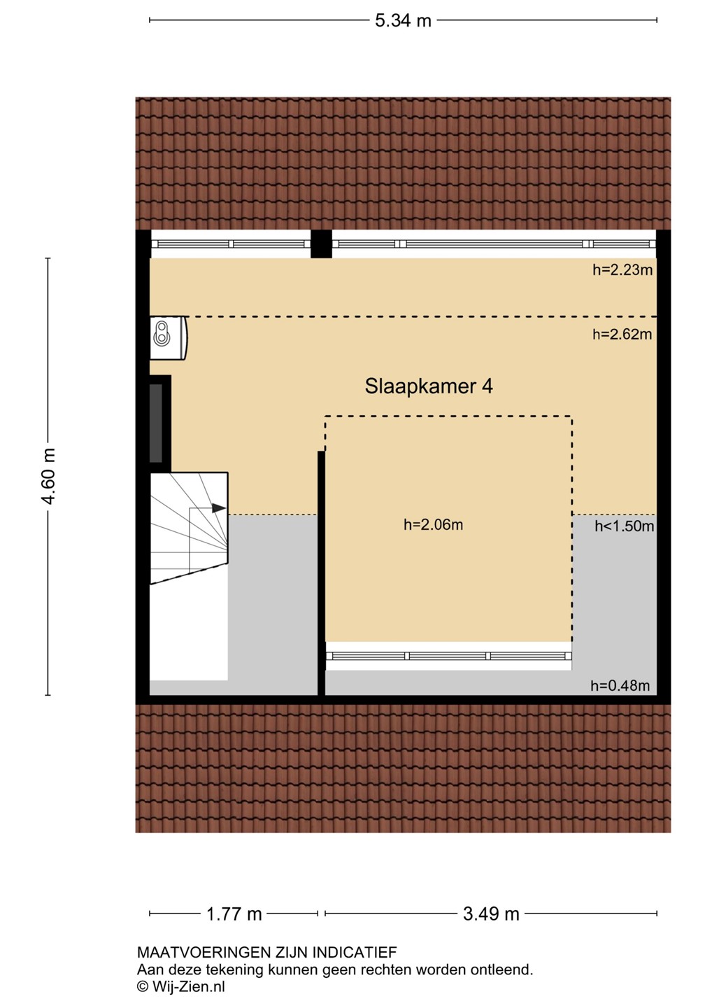
Tweede verdieping
Slaapkamer 4: Via de vaste trap bereik je de zolder, die door een nokverhoging en een dakkapel aan de voorzijde bijzonder ruim is. Door de vele ramen valt er volop daglicht binnen, waardoor de ruimte licht en open aanvoelt. De zolder biedt volop mogelijkheden als hobbyruimte of extra slaapkamer. Er is ook een wasbak aanwezig, wat het gebruik van de ruimte extra praktisch maakt. De afwerking is netjes en verzorgd, met een laminaatvloer, structuurwanden en een gips plafond.
Tuin
Voortuin: De voortuin (afm. ca. 2.50 x 5.64) is netjes aangelegd en ligt aan een rustig straatje. De tuin is gelegen op het westen en is voorzien van sierbestrating.
Achtertuin: De achtertuin (afm. ca. 10.67 x 5.64) is gelegen op het oosten en bereikbaar via een brede achterom, wat ideaal is voor iemand met een motor of fietsen. De tuin is zonnig en goed onderhouden, met voldoende ruimte voor een terras of groen. Er staat een grote schuur, geschikt voor opslag van fietsen, tuinmateriaal of andere spullen.
Schuur: Er is een houten schuur aanwezig, geschikt voor het opbergen van fietsen en tuingereedschap. De schuur is voorzien van elektra.
Bijzonderheden
De Resedastraat ligt dicht bij het centrum van Alblasserdam met alle voorzieningen op loopafstand, zoals verschillende basisscholen, een gezondheidscentrum, supermarkt en het zwembad. Een heerlijke plek om te wonen!
ALGEMEEN
Bouwjaar: 1956
Verwarming: Vaillant Cv-ketel (2016)
Warmwatervoorziening: Vaillant Cv-ketel (2016)
Glas: Dubbele beglazing
Kozijnen: Kunststof kozijnen