Beschrijving
In de kindvriendelijke Schilderbuurt ligt deze verrassend ruime drive-in woning met drie slaapkamers, multifunctionele ruimte, inpandige garage en zonnige achtertuin. De woning is goed onderhouden en biedt veel mogelijkheden. De oprit biedt plaats voor één auto. Op de begane grond vind je de ruimte met eigen keukenblok en douche, een ideale ruimte voor werken aan huis, logees of tieners die graag wat extra privacy willen. De eerste verdieping vormt het hart van de woning met een lichte woonkamer en een open keuken. De schuifpui geeft toegang tot het balkon met trap naar de tuin. Op de tweede verdieping zijn drie slaapkamers en een nette badkamer aanwezig. De tuin is verzorgd aangelegd en voorzien van een mooie houten schuur (2023) en sfeervolle buitenverlichting. Een complete en instapklare woning met verrassend veel ruimte!
Indeling
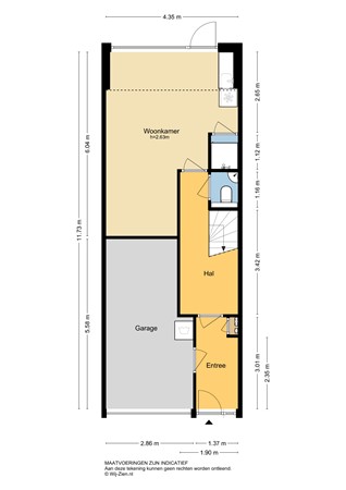
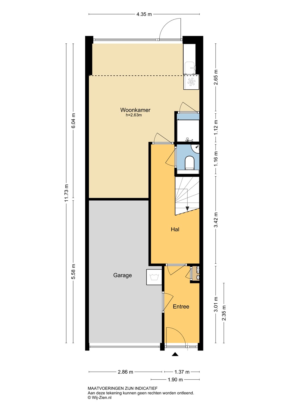
Entree: Je komt binnen via het voorportaal met toegang tot de meterkast en de garage. Vervolgens bereik je de hal met garderobe, trapopgang, toiletruimte en toegang tot de multifunctionele ruimte. De hal is netjes afgewerkt met laminaat, glasvliesbehang en een gips plafond.
Meterkast: De meterkast is voorzien van 8 elektrische groepen, een fornuisgroep, 2 aardlekschakelaars en een hoofdaardlekschakelaar.
Toilet: Keurige toiletruimte met zwevend closet en fonteintje. De ruimte is deels betegeld en verzorgd van afwerking.
Multifunctionele ruimte: Een heerlijke extra ruimte aan de achterzijde van de woning, recent (2024) gerealiseerd. Hier is ook een keukenblok aanwezig en een doucheruimte, wat deze ruimte multifunctioneel maakt. Maak er bijvoorbeeld een comfortabele slaapkamer van, ideaal voor gasten of een gezinslid dat graag beneden slaapt. Of kies juist voor een kantoor aan huis, een hobbyruimte of een stoere mancave waar je na een drukke dag even kunt ontspannen. Via een deur is er direct toegang tot de tuin. De afwerking is strak en modern, een nette laminaatvloer, houten akoestische panelen en een gestuukt plafond.
Garage: Inpandige garage met elektrisch bedienbare deur, voorzien van water en elektra, en een aansluiting voor de wasmachine. Er is een praktische vliering gemaakt voor extra bergruimte. De garage is ook vanuit de hal bereikbaar.
Eerste verdieping
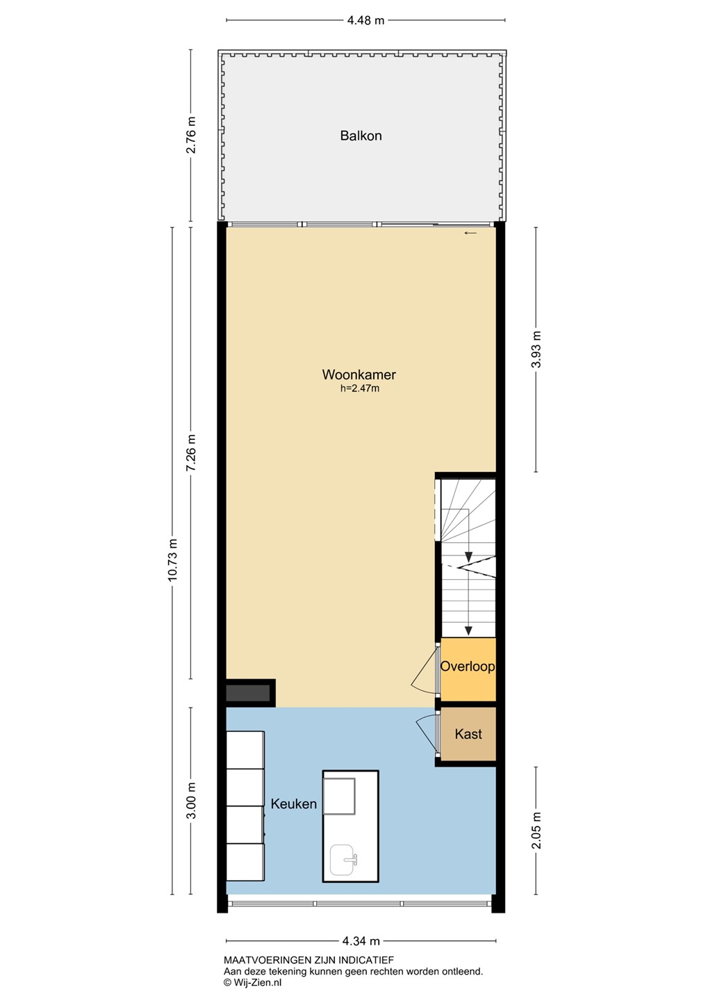
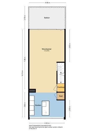
Woonkamer: De ruime woonkamer ligt op de eerste verdieping en biedt veel licht dankzij de grote schuifpui aan de achterzijde. Via deze schuifpui stap je het balkon op, met een trap die leidt naar de tuin. De woonkamer is verzorgd afgewerkt en beschikt over een praktische inbouwkast. De trap naar de tweede verdieping bevindt zich in de woonkamer. De afwerking bestaat uit laminaat, behang en glasvliesbehang, met een gips plafond.
Keuken: Aan de voorzijde bevindt zich de open keuken. Deze is modern en netjes uitgevoerd met een oven/magnetroncombinatie, inductiekookplaat, afzuigkap, koel-/vriescombinatie, vaatwasser en waterfilter voor gezuiverd water. Door het raam aan de voorzijde kijk je leuk de straat in. De afwerking is keurig met laminaat, structuur- en glasvliesbehang en een gips plafond.
Tweede verdieping
Overloop: De lichte overloop geeft toegang tot drie slaapkamers en de badkamer. Er is een lichtkoepel die zorgt voor extra daglicht. Op de overloop vind je tevens de Cv-ketel in een inbouwkast. De afwerking van de overloop bestaat uit laminaat, glasvliesbehang en spuitwerk plafond.
Slaapkamer 1: De slaapkamer aan de voorzijde is ruim en licht, met grote ramen en een plafondlamp met ventilator. De buizen zijn netjes weggewerkt in een koof, wat zorgt voor een strak geheel. Hier is ruimte genoeg voor een groot bed, een kast en eventueel een bureau of een gezellige leeshoek. De kamer is afgewerkt met een laminaatvloer, gestuukte wanden en een spuitwerk plafond.
Slaapkamer 2: Een sfeervolle slaapkamer met uitzicht op de tuin. Momenteel ingericht als kinderslaapkamer, maar uiteraard ook prima te gebruiken als werk- of logeerkamer. Dankzij het raam komt er veel licht naar binnen, waardoor de kamer fris en uitnodigend aanvoelt. De kamer is voorzien van dubbelglas en een hor, en afgewerkt met laminaat, glasvliesbehang en een spuitwerk plafond.
Slaapkamer 3: Ook de derde slaapkamer is prettig van formaat en biedt volop mogelijkheden. Richt de kamer in als tweede kinderkamer, werkkamer of juist als kleedruimte. Net wat jouw situatie vraagt. Door de rustige ligging aan de tuinzijde is het hier heerlijk slapen of werken. De kamer is netjes afgewerkt met laminaat, behang en glasvliesbehang, en een spuitwerk plafond.
Badkamer: De badkamer is netjes en volledig betegeld in marmerlook. Hier heb je alle ruimte om je dag ontspannen te beginnen of juist af te sluiten. De badkamer is voorzien van een ligbad, inloopdouche, zwevend toilet, designradiator en een meubel met geïntegreerde wastafel. De combinatie van lichte tegels en moderne voorzieningen zorgt voor een frisse, verzorgde uitstraling.
Tuin
Voortuin: De keurige voortuin (afm. ca. 5.00 x 4.50) is aangelegd met sierbestrating en leibomen. Je kunt je auto op de oprit parkeren.
Achtertuin: De verzorgde achtertuin, met een diepte van ruim 11 meter en gelegen op het zuiden, biedt volop zon en ruimte. Er ligt een goed onderhouden gazon, er staat een keurige houten schuur en sfeervolle buitenverlichting maakt de tuin ook ’s avonds aantrekkelijk. Daarnaast is de tuin voorzien van zowel water als elektra aansluiting. Vanuit de tuin is direct toegang tot de multifunctionele ruimte en via een trap bereik je het balkon/terras bij de woonkamer.
Schuur: Mooie houten, gepotdekselde schuur, gebouwd in 2023. De schuur is voorzien van elektra en verkeert in uitstekende staat.
Bijzonderheden
Wonen aan de Paulus Potterstraat in Alblasserdam betekent genieten van een rustige, kindvriendelijke wijk met basisscholen, speelplaatsen en supermarkten op korte afstand.
ALGEMEEN
Bouwjaar: 1971
Verwarming: Vaillant Cv-ketel (2018)
Warmwatervoorziening: Vaillant Cv-ketel (2018)
Glas: Dubbele beglazing
Kozijnen: Houten kozijnen
Zonnepanelen: 8 stuks