Beschrijving
Deze verrassend ruime drive-in woning beschikt over drie slaapkamers, een inpandige garage en een onderhoudsvriendelijke tuin op het westen. De woning biedt veel privacy door het vrije zicht aan de achterzijde en is verduurzaamd met tien zonnepanelen en triple glas op de eerste verdieping. De begane grond is praktisch ingedeeld met een inpandige garage en een tuinkamer met directe toegang tot de achtertuin. Op de eerste verdieping vind je een lichte woonkamer en een halfopen keuken, met toegang tot twee balkons. De tweede verdieping biedt drie slaapkamers en een badkamer. Aan de voorzijde kun je jouw auto op eigen oprit parkeren. De woning ligt in een kindvriendelijke buurt met een speeltuin, scholen en een supermarkt op loopafstand. Kortom, een ideale gezinswoning met volop mogelijkheden om jouw droomwoning te realiseren.
Indeling
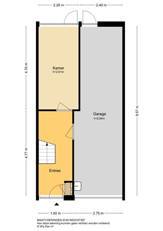
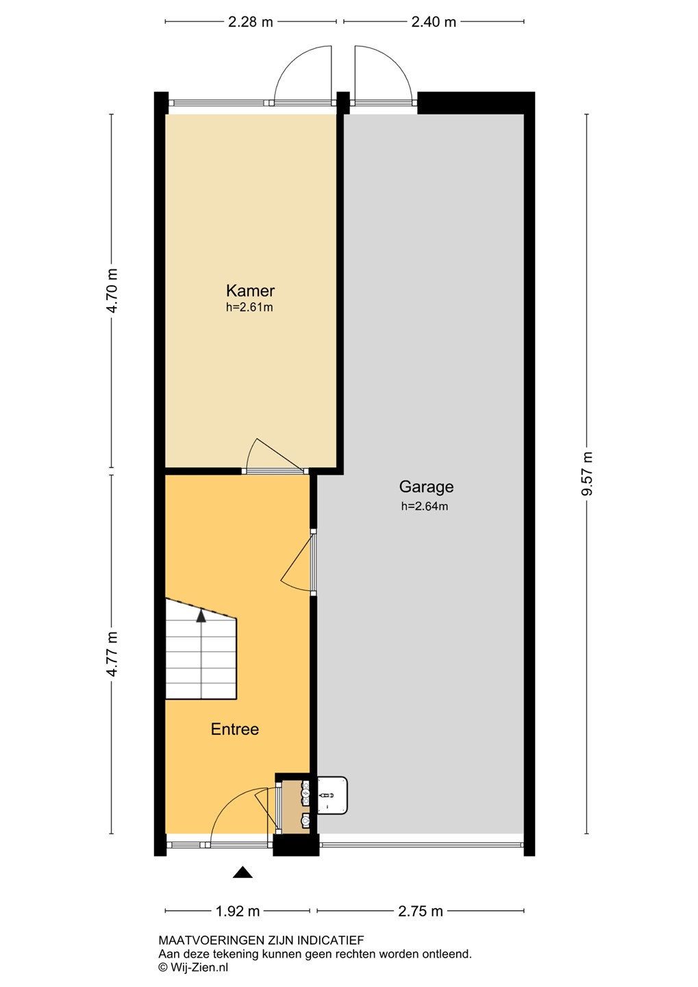
Entree: Je komt de woning binnen op de begane grond, waar je toegang hebt tot een tuinkamer en de inpandige garage. Via de trap bereik je de eerste verdieping. De ruimte is afgewerkt met een plavuizenvloer, granol en behang op de wanden en een structuurplafond.
Meterkast: Direct bij de entree bevindt zich de meterkast, voorzien van zes groepen, een aardlekschakelaar en een 3-fase aansluiting.
Tuinkamer: Op de begane grond aan de achterzijde vind je nog een extra kamer. Deze kamer biedt via een loopdeur direct toegang tot de achtertuin en is voorzien van een wastafel. Dit is een ideale kamer als extra slaapkamer, hobbykamer of tuinkamer. De ruimte is afgewerkt met een laminaatvloer, behangwanden en een gestuukt plafond.
Garage: De ruime inpandige garage is voorzien van een elektrische deur en is via de hal te bereiken. De garage is verwarmd en beschikt over een elektra- en wateraansluiting. Met de royale afmetingen is hier meer dan voldoende plek voor een auto en blijft er volop ruimte over voor hobby’s, klussen of extra opslag. Een heerlijke multifunctionele ruimte die je naar eigen wens kunt gebruiken.
Heb je de virtuele 3D-tour van de woning al bekeken? Maak alvast je eerste ronde door de woning en ontdek zelf de mogelijkheden van deze ruimte woning!
Eerste verdieping
Overloop: De ruime overloop op de eerste verdieping verbindt de woonkamer met de keuken en het toilet. Vanaf hier bereik je ook de trapopgang naar de tweede verdieping en de praktische inbouwkast. Ook is er op deze eerste verdieping aandacht besteed aan duurzaamheid, alle ramen zijn voorzien van triple glas. De ruimte is afgewerkt met een plavuizenvloer, granolwanden en een structuurplafond.
Toilet: De toiletruimte is gedeeltelijk betegeld en ingericht met een staand toilet en een fonteintje.
Woonkamer: De woonkamer is ruim van formaat en valt op door de grote raampartijen, die zorgen voor veel daglicht. Met gemak creëer je hier een royale zithoek met uitzicht op het groen en een eethoek plaats je richting de keuken. De ruimte is afgewerkt met een plavuizenvloer, granolwanden en een gestuukt plafond. Daarnaast biedt de woonkamer volop mogelijkheden om deze geheel naar eigen smaak te moderniseren. Via de deur stap je zo het balkon aan de achterzijde op.
Balkon 1: Dit balkon is gelegen op het westen en is een ideale plek om aan het einde van de dag buiten te zitten met zicht op de achtertuin en de achtergelegen bomen. Het balkon beschikt over een zonnescherm aan de gevel.
Keuken: De halfopen keuken is praktisch ingedeeld in een hoekopstelling en voorzien van inbouwapparatuur, waaronder een oven, 4-pits gasstel, afzuigkap en vaatwasser. Via de loopdeur heb je toegang tot het balkon aan de voorzijde. De keuken is functioneel, maar biedt volop kansen om hier een eigen droomkeuken te realiseren. De ruimte is afgewerkt met een plavuizenvloer, behangwanden en een gestuukt plafond.
Balkon 2: Dit balkon ligt op het oosten, waardoor je hier heerlijk van de ochtendzon kunt genieten. Het balkon biedt vrij uitzicht over de straat en is eveneens voorzien van een zonnescherm.
Tweede verdieping
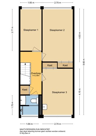
Overloop: De overloop biedt toegang tot de drie slaapkamers en de badkamer. Daarbij vind je hier een diepe inbouwkast, waarin de Cv-ketel is opgesteld. De ruimte is afgewerkt met een laminaatvloer, granolwanden en een delenplafond. Alle slaapkamers op deze verdieping zijn voorzien van rolluiken. Deze verdieping biedt alle ruimte om jouw woonwensen tot leven te brengen. Hier kun je de slaapkamers helemaal naar eigen smaak inrichten en een eigentijds geheel maken.
Slaapkamer 1: Aan de achterzijde van de woning vind je de eerste slaapkamer. Een fijne kamer die zich uitstekend leent als kinder-, werk- of kleedkamer. De ruimte is afgewerkt met vloerbedekking, granolwanden en een delenplafond.
Slaapkamer 2: Ook deze slaapkamer ligt aan de achterzijde en is ruim van formaat. De kamer beschikt over inbouwkasten en aansluitingen voor een tv en airconditioning. Vanuit de kamer heb je prettig zicht op het groen. De ruimte is afgewerkt met een laminaatvloer, granolwanden en een delenplafond.
Slaapkamer 3: Deze derde slaapkamer aan de voorzijde van de woning is eveneens ruim van formaat. De kamer beschikt over een eigen fonteintje en is voorzien van inbouwkasten. De kamer is afgewerkt met een laminaatvloer, granolwanden en een delenplafond.
Badkamer: De badkamer is compleet uitgevoerd met een inloopdouche, wastafel en toilet. Een praktische en comfortabele ruimte voor dagelijks gebruik.
Tuin
Voortuin: De voortuin (afm. ca. 5,5 x 5,1 m) is gelegen op het oosten en onderhoudsarm aangelegd met bestrating. Door de diepte van de tuin heb je de mogelijkheid om je auto op eigen terrein te parkeren.
Achtertuin: De achtertuin (afm. ca. 10,4 x 5,1 m) ligt op het westen en is aangelegd met sierbestrating en diverse plantenborders met onder andere druiven. Hier geniet je van vrij zicht en veel privacy. Dankzij het zonnescherm aan de gevel creëer je eenvoudig een fijne schaduwplek op warme zomerdagen.
Bijzonderheden
In de omgeving van de Da Costastraat vind je de supermarkt op loopafstand en veel kindvriendelijke voorzieningen zoals een speeltuin voor de deur, basisscholen, een skatebaan en parkjes. Verder liggen uitvalswegen en het centrum van Alblasserdam op korte afstand van de woonwijk.
ALGEMEEN
Bouwjaar: 1969
Verwarming: Nefit Trendline Cv-ketel (2015)
Warmwatervoorziening: Nefit Trendline Cv-ketel (2015)
Glas: Dubbele beglazing en HR-glas
Kozijnen: Houten en kunststof kozijnen