Beschrijving
Deze instapklare eindwoning uit 2007 beschikt over vier slaapkamers, airconditioning en zonnepanelen. Op de begane grond bevindt zich een lichte woonkamer met tuingerichte indeling en een open keuken aan de voorzijde. De eerste verdieping biedt drie slaapkamers en een badkamer. De tweede verdieping heeft een ruime voorzolder met opstelplaats voor de wasapparatuur en een vierde slaapkamer met twee dakramen. De achtertuin ligt op het zuiden en is voorzien van een tuinhuis. In de wijk vind je onder andere scholen, openbaar vervoer en uitvalswegen. Ben je enthousiast geworden? Wij leiden je graag rond.
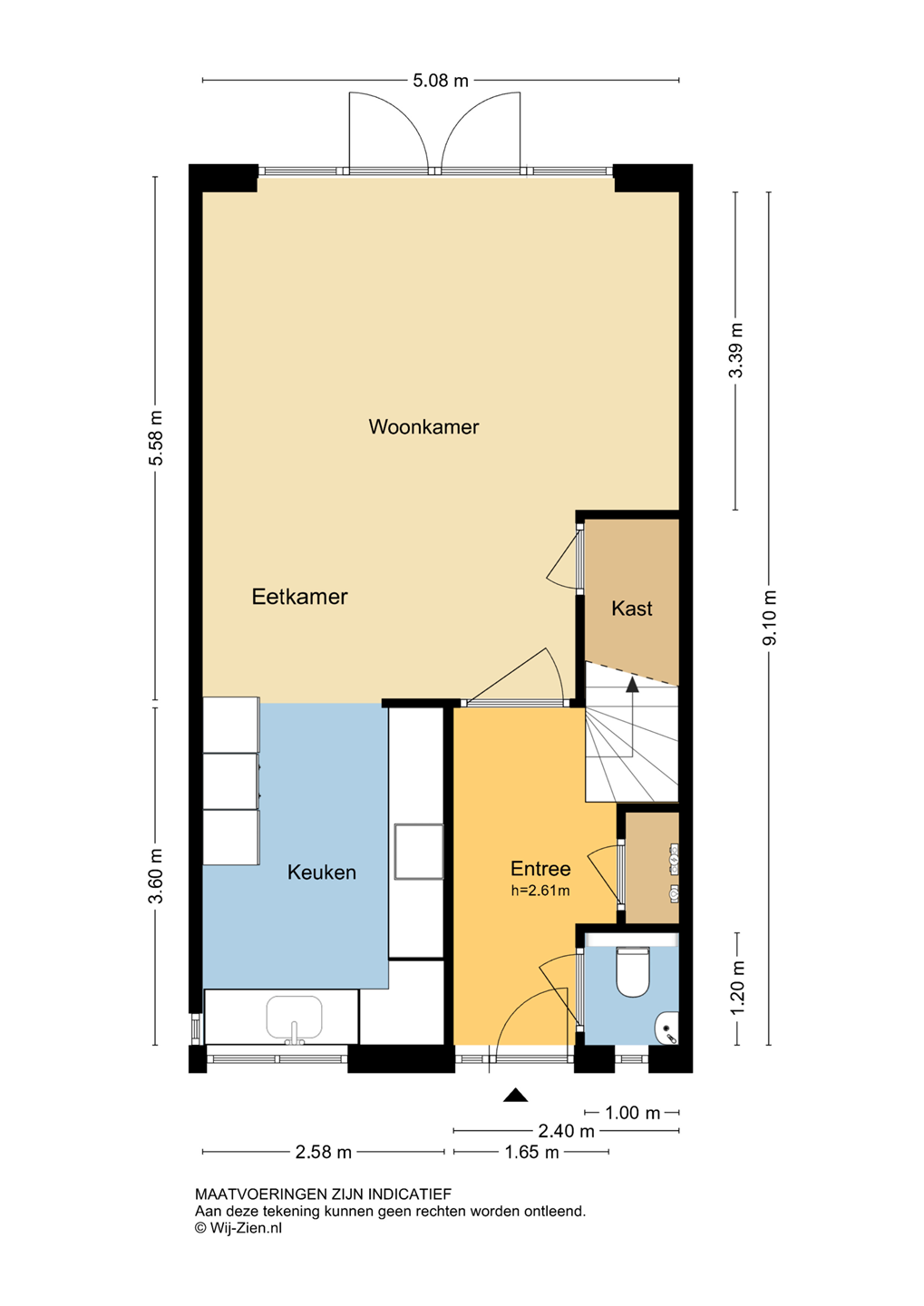
Indeling
Entree: De ruime hal geeft direct toegang tot de woonkamer, de toiletruimte, de meterkast. De trap naar de eerste verdieping is voorzien van verlichting en de mooie houten visgraatvloer met vloerverwarming loopt door over de hele begane grond. Via een gave stalen deur betreed je de woonkamer. De afwerking bestaat uit gestuukte en akoestische wanden en een gestuukt plafond.
Meterkast: De meterkast is voorzien van dertien elektrische groepen, een aardlekschakelaar en een hoofdaardlekschakelaar.
Toilet: De toiletruimte heeft een neutrale uitstraling en vormt een verzorgd geheel. De ruimte is deels betegeld en voorzien van een zwevend closet en mechanische ventilatie.
Woonkamer: De woonkamer is echt een plaatje! Het is net of je een Woonmagazine instapt. De woonkamer is tuingericht en heeft openslaande deuren naar de achtertuin. Er is een trapkast aanwezig voor extra bergruimte en een prachtige op maat gemaakte kast (ter overname) voor je tv en accessoires. De kamer voelt ruim en licht aan door de grote glaspartij aan de tuinzijde. De afwerking bestaat uit een houten vloer, gestuukte wanden en houten kozijnen met dubbel glas.
Keuken: De prachtige keuken bevindt zich aan de voorzijde en heeft een ruime opstelling met diverse apparatuur, waaronder een oven, oven-magnetroncombinatie, inductiekookplaat, afzuigkap, koelkast, vriezer, Quooker en vaatwasser. Door het raam aan de voorzijde is er zicht op de straat. De ruimte biedt voldoende werkblad en opbergmogelijkheden. De afwerking sluit volledig aan bij die van de woonkamer.
Eerste verdieping
Overloop: De overloop is ruim opgezet en geeft toegang tot drie slaapkamers, de badkamer en de trap naar de tweede verdieping. De laminaatvloer loopt door over deze verdieping en zorgt voor een rustige uitstraling. De wanden zijn in structuur uitgevoerd.
Slaapkamer 1: Aan de achterzijde bevindt zich de eerste slaapkamer, voorzien van airconditioning en een dakraam. De kamer heeft een praktische indeling en biedt ruimte voor een bed en kastruimte. De afwerking van de kamers bestaat uit een laminaatvloer, gestuukte wanden en een spuitwerk plafond.
Slaapkamer 2: De tweede slaapkamer ligt ook aan de achterzijde en heeft airconditioning en een dakraam. De ruimte is geschikt als slaapkamer of werkplek.
Slaapkamer 3: Slaapkamer drie ligt aan de voorzijde en beschikt over een dakkapel, rolluik, airconditioning en een inbouwkast. De kamer biedt voldoende ruimte voor een tweepersoonsbed.
Badkamer: De nette badkamer is volledig betegeld en uitgerust met een ligbad met douchegelegenheid, tweede toilet, mechanische ventilatie, wastafelmeubel en een designradiator. De ruimte is inpandig en vormt een praktische en verzorgde badkamer.
Tweede verdieping
Overloop: De ruime voorzolder heeft een dakraam en biedt plaats aan de Cv-ketel, omvormer voor de zonnepanelen en de wasmachine en droger. Er is extra opbergruimte aanwezig in de vaste kast. Er wordt toegang geboden tot slaapkamer vier. De afwerking bestaat uit een laminaatvloer, gestuukte wanden en een delen plafond.
Slaapkamer 4: De vierde slaapkamer op de tweede verdieping is een lichte en ruime kamer dankzij de twee dakramen en de hoge nok. De kamer is uitgerust met airconditioning, waardoor het zowel in de zomer als in de winter comfortabel vertoeven is. Achter de knieschotten is extra bergruimte beschikbaar, ideaal voor het opbergen van seizoensspullen of koffers. Ook hier zie je weer de nette afwerking terugkomen. De afwerking omvat een laminaatvloer en gestuukte wanden.
Tuin
Voortuin: De voortuin bestaat uit tuinborders en geeft een verzorgd aanzicht.
Zijtuin: De zijtuin (afm. ca. 6.80 x 1.00) ligt op het oosten. Er is ruimte voor het plaatsen van containers in een apart houten hok.
Achtertuin: De achtertuin (afm. ca. 8.40 x 7.20) ligt op het zuiden en biedt een ruim terras met plek voor een zit- en eetgedeelte. Er is ook plek om bijvoorbeeld een jacuzzi te plaatsen. Via een klein trapje bereik je het tuinhuis. De tuin is verzorgd aangelegd en uitgerust met siergrassen, olijfbomen, een groot zonnescherm en een waterpunt. De tuin is achterom bereikbaar. Een heerlijke, veelzijdige tuin waar je optimaal kunt genieten van zowel zon als schaduw.
Schuur: Aan het tuinhuis grenst direct de schuur, die extra opbergruimte biedt. De afwerking sluit aan bij het tuinhuis.
Bijzonderheden
De woning aan de Blokweersingel is prettig gelegen in de wijk Kinderdijk. De woning ligt dichtbij veel praktische voorzieningen, zoals basisscholen, winkelcentrum 'Scheldeplein’, een speeltuin, bushaltes en diverse uitvalswegen. Ook ligt het molengebied van Kinderdijk op korte afstand.
ALGEMEEN
Bouwjaar: 2007
Verwarming: Intergas HRE Cv-ketel (2022) + vloerverwarming gedeeltelijk (woonkamer, keuken en hal)
Warmwatervoorziening: Intergas HRE Cv-ketel (2022)
Glas: Dubbele beglazing
Kozijnen: Hardhouten kozijnen
Zonnepanelen: 10 stuks