Beschrijving
Deze ruime gezinswoning ligt aan het rustige einde van een hofje en biedt volop mogelijkheden voor wie een huis naar eigen smaak wil moderniseren. Op de begane grond vind je een lichte woonkamer met open haard, open keuken en praktische bijkeuken met directe toegang tot de tuin en garage. Op de eerste verdieping zijn vier fijne slaapkamers en een praktische badkamer aanwezig. De zolder biedt extra ruimte en kan eenvoudig worden ingericht als extra slaapkamers of hobbyruimte. De zonnige achtertuin, ruime voortuin en zijtuin bieden volop buitenruimte en privacy. De garage en oprit zorgen ervoor dat je de auto op eigen terrein kunt parkeren. Met maar liefst 14 zonnepanelen is de woning energiezuinig. De woning is netjes, maar klaar voor een eigentijdse update.
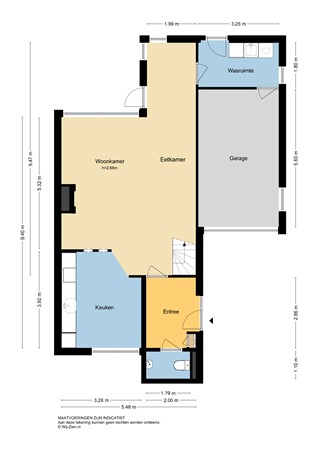
Indeling
Entree: Zodra je door de voordeur naar binnengaat kom je in een ruime hal met garderobe. Vanuit hier heb je toegang tot de toiletruimte, meterkast en loop je verder de woonkamer in. De ruimte is afgewerkt met een grintvloer, die over de gehele begane grond doorloopt. De ruimte is verder afgewerkt met behangwanden en een spuitwerkplafond.
Meterkast: De meterkast is voorzien van zeven groepen en één elektrische groep met een aardlekschakelaar en een hoofdaardlekschakelaar.
Toilet: Een ruime toiletruimte, voorzien van een staand toilet, een fonteintje en mechanische ventilatie en volledig betegeld. Met een moderne update kun je hier een frisse, eigentijdse ruimte van maken.
Woonkamer: De woonkamer is heerlijk licht dankzij de grote ramen aan de achterzijde en het zijraam. De open haard zorgt voor extra sfeer en via de deur heb je toegang tot de tuin. Ook is er een deur naar de bijkeuken. Je kunt hier een gezellige zithoek creëren rondom de openhaard. De woonkamer is afgewerkt met een grintvloer, spachtelputz wanden en een plafond met houten delen.
Keuken: De deels open keuken ligt aan de voorzijde van de woning en kijkt uit over de voortuin. De keuken is voorzien van alle benodigde apparatuur, waaronder een oven, keramische kookplaat, afzuigkap, koel-vriescombinatie en vaatwasser. De keuken heeft een nette uitstraling en biedt een mooie basis om naar eigen smaak te moderniseren.
Bijkeuken: Een fijne extra ruimte met keukenblok, wateraansluiting, wasmachine-aansluiting en voldoende kastruimte. Vanuit hier is zowel de tuin als de garage gemakkelijk bereikbaar. De ruimte is netjes afgewerkt met een plavuizenvloer, structuurwanden en een gipsenplafond.
Eerste verdieping
Overloop: Via de trap kom je in een klein voorportaal, dat toegang geeft tot slaapkamer drie. Via de tussendeur bereik je de overloop met de overige slaapkamers en de badkamer. Zo blijft de warmte goed behouden.
Slaapkamer 1: Een fijne slaapkamer aan de achterzijde van de woning met voldoende ruimte voor een tweepersoonsbed en een kledingkast. Vanuit de kamer heb je uitzicht op de groene tuin. De ruimte is voorzien van horren en netjes afgewerkt met vloerbedekking, structuurwanden en een spuitwerkplafond.
Slaapkamer 2: Een knusse slaapkamer met Velux-dakraam en handige kast onder het schuine dak. De kamer is ideaal als kinderkamer of thuiswerkkantoor. De opbergruimte is praktisch voor bijvoorbeeld je verzamelingen, foto’s of andere herinneringen. De ruimte is netjes afgewerkt met vloerbedekking, glasvliesbehang en een spuitwerkplafond.
Slaapkamer 3: Deze ruime slaapkamer heeft een schuin dak, een Velux-dakraam en ramen aan de voor- en zijkant, waardoor er volop daglicht naar binnen valt. De kamer is voorzien van horren en afgewerkt met een laminaatvloer en gestuukte wanden en plafond.
Slaapkamer 4: Deze slaapkamer is heerlijk ruim en beschikt over een vaste kastenwand, ideaal om je garderobe netjes op te bergen. Dankzij de prettige indeling is er voldoende ruimte voor een groot bed en andere meubels. De kamer is voorzien van horren en afgewerkt met vloerbedekking, behangwanden en een spuitwerkplafond.
Badkamer: De inpandige badkamer is praktisch ingedeeld en voorzien van een ligbad, douche, toilet en wastafelmeubel. Via een klein opstapje stap je gemakkelijk in het bad of de douchecabine. De ruimte is volledig betegeld en vormt een functionele basis die je naar eigen smaak kunt moderniseren.
Tweede verdieping
Zolder: De grote zolderruimte biedt veel mogelijkheden. Hier vind je de opstelplaats van de cv-ketel en de omvormer van de zonnepanelen. Door het kleine dakraam valt er daglicht binnen, en met de optie om bijvoorbeeld een dakkapel toe te voegen, kun je de ruimte verder benutten voor extra slaapkamers en nog meer licht. De zolder is afgewerkt met vloerbedekking, betonnen wanden en een houten plafond.
Tuin
Voortuin: De voortuin (afm. ca. 6,0 x 4,2 m) ligt op het noordoosten. De oprit biedt ruimte voor je eigen auto en de beplanting met tuinborders en bolboompjes geeft een groen en verzorgd aanzicht.
Achtertuin: De achtertuin (afm. ca. 8,6 x 12,3 m) is ruim opgezet en ligt op het zuidwesten, waardoor je hier heerlijk van de zon kunt genieten. Het gazon en de groene tuinborders zorgen voor een verzorgde uitstraling. Op het terras kun je gezellig buiten eten met het gezin. Het sfeervolle blokhutje met elektra-aansluiting maakt de tuin compleet.
Zijtuin: De zijtuin (afm. ca. 7,7 x 2,9 m) is volledig bestraat en biedt praktische mogelijkheden. Je kunt hier een kleine tweede auto parkeren, hout opslaan en de containers netjes uit het zicht plaatsen.
Garage: Inpandige stenen garage met elektrische kanteldeur en ruimte voor één auto. Voor de garage kun je de auto op de oprit (afm. ca. 4,1 x 2,5 m) parkeren.
Bijzonderheden
De Akkerwinde ligt in een rustige wijk, in de buurt van wandel en fietsroutes. Naar verschillende supermarkten wandel je in 10 minuten. Verder liggen het zwembad en basisscholen op een steenworp afstand en het Lammetjeswiel bereik je op de fiets in 7 minuten. Lekker centraal!
ALGEMEEN
Bouwjaar: 1980
Verwarming: Intergas HRE Cv-ketel (2024) + vloerverwarming gedeeltelijk (woonkamer en keuken)
Warmwatervoorziening: Intergas HRE (2024)
Glas: Volledig dubbele beglazing
Kozijnen: Houten en kunststof kozijnen