Beschrijving
Deze ruime woning in een rustige, groene omgeving biedt een fijne basis om comfortabel te wonen. De oprit en garage zorgen direct voor praktisch gemak: parkeren kan op eigen terrein. Binnen wacht een royale, tuingerichte woonkamer waar het vele daglicht mooi binnenvalt. Dankzij de ligging aan de achterzijde geniet je hier van optimale privacy en een prettig uitzicht op het groen. De ruime keuken aan de voorzijde is ideaal voor wie van lekker koken houdt en biedt volop mogelijkheden om de indeling naar eigen wens te moderniseren. Op de verdiepingen zijn een badkamer en drie goed bemeten slaapkamers aanwezig, met daarnaast de mogelijkheid om een vierde kamer te creëren. De achtertuin ligt gunstig op het westen, waardoor je hier ’s middags en ’s avonds heerlijk in de zon zit. Deze woning heeft alles in zich om een thuis te worden dat je volledig naar je hand kunt zetten. Waar wacht je nog op?
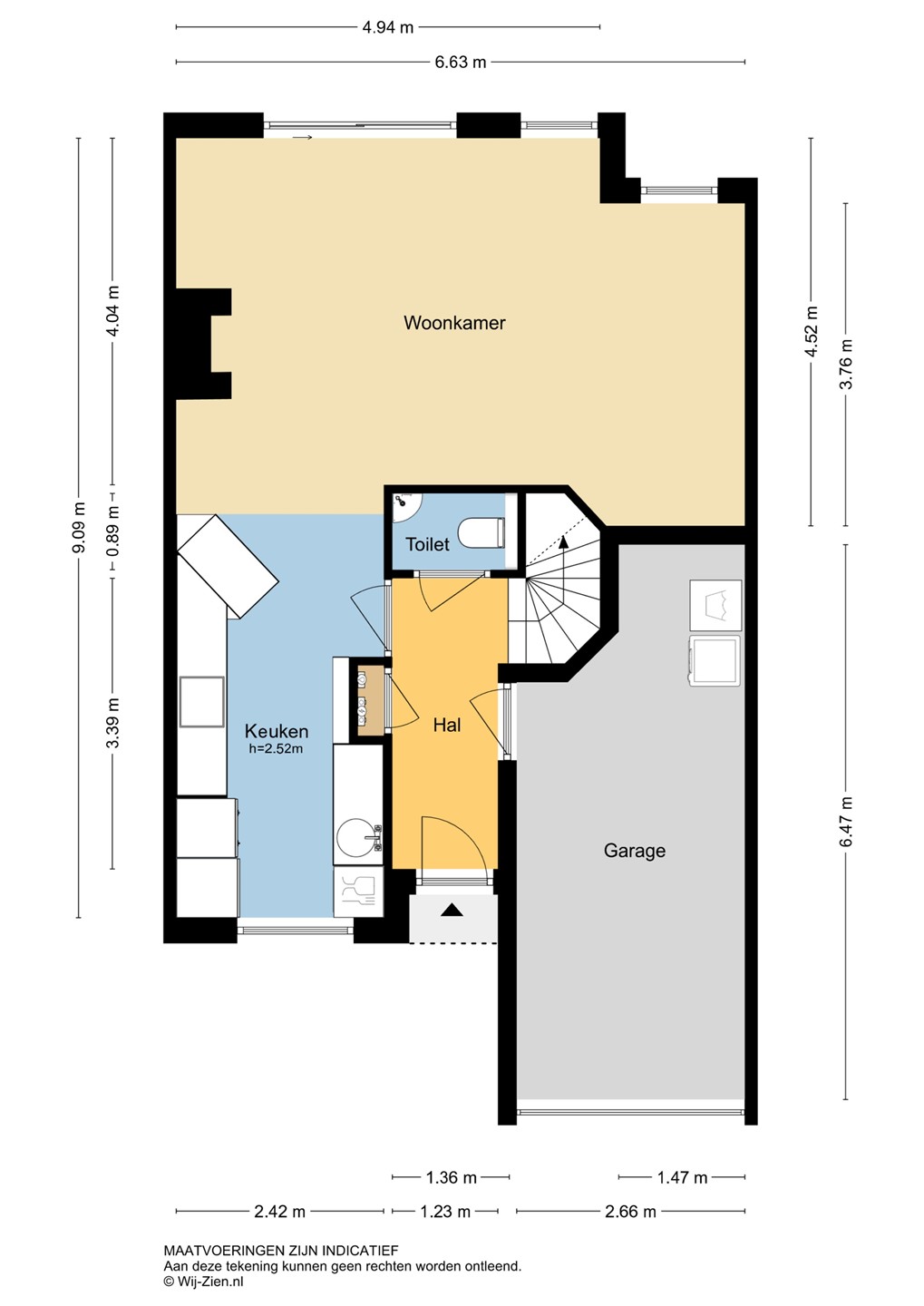
Indeling
Entree: De entree is een lange hal met toegang tot de meterkast, de garage, de toiletruimte en de woonkamer. De afwerking bestaat uit plavuizenvloer, structuurwanden en een delen plafond.
Meterkast: De meterkast is uitgerust met acht elektrische groepen, een aardlekschakelaar en een beltrafo.
Toilet: De toiletruimte is volledig betegeld en is voorzien van een zwevend toilet en een fonteintje. De ruimte is licht afgewerkt en biedt een nette indruk.
Woonkamer: De woonkamer is ruim opgezet en volledig gericht op de achtertuin, waardoor je geniet van veel privacy. De open haard vormt een centraal element in de ruimte. De grote raampartij aan de achterzijde zorgt voor veel lichtinval en een open zichtlijn richting de tuin. De woonkamer staat in verbinding met de keuken en voelt daardoor ruim. De afwerking bestaat uit plavuizenvloer, structuurwanden en een spuitwerkplafond.
Keuken: De keuken is open van opzet en heeft een praktische indeling met een inductiekookplaat, afzuigkap, koel-vriescombinatie en vaatwasser. Het raam zorgt voor een fijne lichtinval tijdens het koken. Wie graag zijn eigen draai geeft aan een woning, kan er (op termijn) voor kiezen om de keuken te vernieuwen. Ga je voor een moderne of juist een landelijke uitstraling? De ruimte biedt hiervoor alle mogelijkheden.
Eerste verdieping
Overloop: De overloop geeft toegang tot twee slaapkamers en de badkamer. De afwerking bestaat uit vloerbedekking, structuurwanden en een spuitwerkplafond.
Slaapkamer 1: Slaapkamer één ligt aan de voorzijde van de woning en biedt een ruime opzet. De kamer heeft een rechte indeling en een rustige uitstraling. Alle slaapkamers zijn voorzien van horren. De afwerking bestaat uit vloerbedekking, gestuukte wanden en een plafond met spuitwerk.
Slaapkamer 2: Slaapkamer twee ligt aan de achterzijde en heeft een zeer royale afmeting doordat deze vroeger uit twee kamers bestond. Door de brede dakkapel en een extra zijraam heeft deze kamer opvallend veel lichtinval. De indeling maakt het mogelijk om de ruimte naar wens in te delen. De afwerking bestaat uit vloerbedekking, structuurwerk op de wanden en een plafond met spuitwerk.
Badkamer: De badkamer is volledig betegeld en uitgerust met een wastafel, toilet, ligbad, designradiator en een douchecabine. Het raam aan de voorzijde kan worden geopend voor natuurlijke ventilatie.
Tweede verdieping
Overloop: De overloop op deze verdieping ligt aan de achterzijde en biedt toegang tot de zolderkamer en de Cv-ruimte. De Cv-ketel is hier geplaatst en de ruimte is compact maar praktisch ingedeeld. De afwerking bestaat uit vloerbedekking, glasvliesbehang op de wanden en een plafond met delen.
Slaapkamer 3: De zolderkamer ligt aan de voor- en achterzijde en heeft aan beide zijden dakramen, wat zorgt voor een prettige lichtverdeling in de ruimte. Er is een handige nis aanwezig die geschikt is voor kastruimte. De kamer is goed bruikbaar als extra slaap- of werkruimte. De afwerking bestaat uit vloerbedekking, glasvliesbehang op de wanden en een delen plafond.
Tuin
Voortuin: De voortuin (afm. ca. 6.90 x 6.70) ligt op het oosten en biedt ruimte voor het plaatsen van één auto. De tuin heeft een verzorgde uitstraling en beschikt over sierbestrating, borders en elektra. De voortuin vormt een nette entree van de woning.
Achtertuin: De achtertuin ligt op het westen en heeft een ruime maatvoering (afm. ca. 9.90 x 6.70). Er is een achterom aanwezig en de tuin beschikt over water, elektra en een zonnescherm. De indeling bestaat uit sierbestrating en tuinborders met voldoende groen. De tuin heeft een keurige uitstraling en geniet van veel privacy.
Schuur: De schuur is uitgevoerd als houten blokhut en voorzien van elektra. De ruimte is praktisch voor opslag en staat achter in de achtertuin.
Garage: De inpandige garage is uitgevoerd in steen en bereikbaar vanuit de hal. De garage heeft een elektrische deur en biedt plaats voor één auto. Tevens bevinden zich hier de wasmachine- en drogeraansluitingen en een vaste kast.
Bijzonderheden
De Lijsterbeshof ligt in de fraaie wijk Wilgendonk in Papendrecht. In en rond deze wijk zijn veel plekken om te ontspannen in het groen. Maar je bent ook binnen een paar minuten in het centrum van het dorp en het overdekte winkelcentrum Wilgendonk. Ook scholen bevinden zich in de zeer nabije omgeving. Een fijne plek om te wonen!
ALGEMEEN
Bouwjaar: 1987
Verwarming: Vaillant HR Cv-ketel (2006)
Warmwatervoorziening: Vaillant HR Cv-ketel (2006)
Glas: Dubbele beglazing
Kozijnen: Hardhouten kozijnen