Beschrijving
Deze lichte bovenwoning aan de Meester Bouwmanstraat ligt centraal in Nieuw-Lekkerland, op loopafstand van winkels, scholen en openbaar vervoer en bevindt zich boven een supermarkt. De royale doorzonwoonkamer valt op door het vele daglicht en biedt toegang tot een ruim dakterras op het westen. De keuken bevindt zich aan de achterzijde en is eenvoudig van opzet. Op de eerste verdieping bevinden zich drie slaapkamers, een compacte badkamer en op de tweede verdieping een ruime vierde slaapkamer met extra bergruimte. De woning is grotendeels voorzien van dubbel glas en deels van kunststof kozijnen. Dankzij de lichte ruimtes en praktische indeling vormt dit een fijne basis voor wie op zoek is naar een centraal gelegen woning.
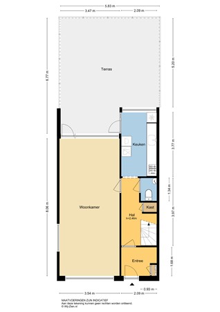
Indeling
Entree: Je betreedt de woning in een knusse hal met glas-in-looddeur die de ruimte afsluit, een ideale plek om je jas op te hangen. Vanuit de hal bereik je de toiletruimte, de woonkamer, de keuken en een praktische inbouwkast. De hal is afgewerkt met een houten vloer en gestuukte wanden en plafonds.
Meterkast: De meterkast bestaat uit 7 groepen en een hoofdaardlekschakelaar.
Toilet: De deels betegelde toiletruimte is voorzien van een staand closet en fonteintje. De afwerking is eenvoudig met een kleurrijke touch.
Woonkamer: De woonkamer is een lichte doorzonkamer met veel raampartijen, wat zorgt voor een prettige lichtinval gedurende de dag. Zowel aan de voor- als achterzijde zijn zonneschermen geplaatst, wat zorgt voor een aangename binnentemperatuur in de zomer. Vanuit de woonkamer loop je zo het heerlijke dakterras op. De woonkamer is afgewerkt met een houten vloer, gestuukte wanden en plafonds.
Keuken: De deels open keuken ligt aan de achterzijde en is heerlijk licht dankzij het grote raam en de deur naar het dakterras. De ruimte is voorzien van een 4-pits gasfornuis, afzuigkap en een aansluiting voor de wasmachine. De afwerking met plavuizen vloer, betegelde wanden en plafondplaten zorgt voor een verzorgde basis die je eenvoudig naar eigen smaak kunt moderniseren.
Eerste verdieping
Overloop: De ruime overloop geeft toegang tot drie slaapkamers en de badkamer. De ruimte is afgewerkt met laminaat vloer, gestuukte wanden en een zachtboard plafond.
Slaapkamer 1: Ruime slaapkamer gelegen aan de voorzijde van de woning. De praktische inbouwkast biedt volop ruimte voor je garderobe en de rolluiken zorgen voor een goede nachtrust. De ruimte is afgewerkt met een laminaatvloer, gestuukte wanden en zachtboard plafond.
Slaapkamer 2: Een grote slaapkamer die veel ruimte biedt en is voorzien van een praktische inbouwkast en een rolluik. Het zonnescherm houden de felle zon op warme dagen buiten. Vanuit deze kamer is er toegang tot het balkon. De ruimte is afgewerkt met een laminaatvloer, gestuukte wanden en zachtboard plafond.
Slaapkamer 3: Leuke, lichte kamer die goed te gebruiken is als werk- of kinderkamer. De kamer is voorzien van een handige inbouwkast en biedt toegang tot het balkon. De kamer is afgewerkt met structuurwanden en een zachtboard plafond en is voorzien van een zonnescherm. Vanuit het raam heb je leuk zicht op het Kleyburgplein.
Badkamer: De compacte badkamer is volledig betegeld en voorzien van een ligbad met douchegelegenheid, toilet, wastafel, designradiator en inbouwspots. Een prima plek om jezelf even op te frissen.
Tweede verdieping
Overloop: Ruime overloop met handige opbergruimte en een aparte ruimte met opstelplaats van de Cv-ketel. De overloop geeft toegang tot de vierde slaapkamer. De ruimte is afgewerkt met vloerbedekking, structuurwanden en zachtboard plafond.
Slaapkamer 4: Zeer ruime kamer met dakraam aan de voorzijde en een extra raam in de zijgevel, wat zorgt voor veel lichtinval. De kamer is ideaal als vierde slaapkamer, hobbyruimte of werkkamer. Ook deze kamer is voorzien van handige opbergruimte. De ruimte is afgewerkt met vloerbedekking, structuurwanden en zachtboard plafond.
Tuin
Dakterras: Aan de achterzijde bevindt zich het royale dakterras, gelegen op het westen. Hier kun je heerlijk genieten van de middag- en avondzon. Er is voldoende plek voor een eettafel of loungeset om gezellig met vrienden of familie te dineren.
Schuur: Op de begane grond, direct rechts naast de trapopgang naar de woning, bevindt zich een stenen berging met elektra, wateraansluiting en een handige vliering. Hier bevindt zich ook de watermeter. Een praktische ruimte voor fietsen, opslag of het wassen van de auto.
Bijzonderheden
Deze woning ligt nabij het centrum, waardoor alle praktische voorzieningen op korte afstand te vinden zijn. Denk aan winkels, basisscholen en volop mogelijkheden om te fietsen of te wandelen. En houd je van verse broodjes op zaterdagochtend? De bakker zit om de hoek!
ALGEMEEN
Bouwjaar: 1970
Verwarming: Remeha Quinta Cv-ketel (2005)
Warmwatervoorziening: Remeha Quinta Cv-ketel (2005)
Glas: Grotendeels dubbelglas
Kozijnen: Hout en kunststof