Beschrijving
In de geliefde en rustige wijk Kinderdijk staat deze tussenwoning uit 1958. De woning beschikt over een lichte doorzonwoonkamer, gesloten keuken, drie slaapkamers en een zolder. De diepe achtertuin met achterom en stenen schuur biedt veel buitenruimte en mogelijkheden om naar eigen wens in te richten. De woning is voorzien van houten kozijnen met dubbel glas en rolluiken aan zowel de voor- als achterzijde. Deze fijne starterswoning met potentie op een rustige plek in Alblasserdam met de mogelijkheid tot aan- of opbouwen.
Indeling
Entree: De nette entree geeft toegang tot de toiletruimte, kelder, keuken en de woonkamer. De ruimte is afgewerkt met vloerbedekking, behangwanden en een gestuukt plafond. De hal vormt een praktische binnenkomst met voldoende ruimte voor een kapstok.
Toilet: Het toilet is keurig afgewerkt met deels betegelde wanden en voorzien van een fonteintje, een zwevend toilet en een raampje. Dankzij het raampje is er natuurlijke ventilatie aanwezig. Er is de gelegenheid om het naar eigen smaak te moderniseren.
Kelder en meterkast: De kelder is bereikbaar via enkele treden en biedt een praktische, extra bergruimte voor voorraad of spullen die je graag uit het zicht wilt opbergen. Hier bevindt zich ook de meterkast, voorzien van zeven stoppen.
Woonkamer: De woonkamer is een fijne, lichte doorzonkamer met grote ramen aan zowel de voor- als achterzijde. Hierdoor valt er de hele dag door veel daglicht binnen en is het een prettige plek om te zitten. Zowel aan de voor- als achterzijde zijn rolluiken aanwezig, ideaal. Verder beschikt de woonkamer over een praktische inbouwkast voor extra bergruimte. De indeling leent zich goed voor een gezellige zithoek aan de voorzijde en een eethoek richting de keuken. De ruimte is afgewerkt met vloerbedekking, spachtelputz wanden en een spuitwerk plafond.
Keuken: De gesloten keuken ligt aan de achterzijde van de woning. De inrichting is eenvoudig, maar netjes onderhouden. De keuken is uitgerust met diverse apparaten, waaronder een 4-pits gasstel, oven, afzuigkap en koelkast. Via de achterdeur is er directe toegang tot de achtertuin. Wie wil moderniseren of de keuken wil betrekken bij de woonkamer, vindt hier volop mogelijkheden om de ruimte naar eigen wens te vernieuwen of uit te breiden. De ruimte is afgewerkt met vloerbedekking, behang wanden en een gestuukt plafond.
Eerste verdieping
Overloop: De overloop is netjes afgewerkt met laminaat, behangwanden en plafonddelen, en biedt toegang tot drie slaapkamers en de badkamer. Een inbouwkast op de overloop zorgt voor extra bergruimte. Ook de slaapkamers zijn keurig afgewerkt met laminaat, behangwanden en plafonddelen.
Slaapkamer 1: De eerste slaapkamer bevindt zich aan de voorzijde van de woning en is keurig verzorgd. Dankzij het raam valt er veel daglicht naar binnen, wat zorgt voor een prettige en lichte sfeer. Het aanwezige rolluik biedt de mogelijkheid om de kamer goed te verduisteren.
Slaapkamer 2: Aan de achterzijde ligt de tweede, ruime slaapkamer. Ook hier zorgt het rolluik voor comfort en privacy. De aanwezige inbouwkast biedt handige opbergruimte voor een deel van de garderobe. De kamer voelt licht en prettig aan en is perfect als hoofdslaapkamer.
Slaapkamer 3: De derde kamer is wat kleiner van formaat, maar dankzij de praktische inbouwkast en het rolluik een fijne kamer. Ideaal als kinderkamer, werkplek of hobbyruimte.
Badkamer: De badkamer is compact, maar functioneel ingedeeld. De ruimte is voorzien van een wastafel met meubel, douche, toilet en design radiator. De ruimte heeft een nette basis die ruimte biedt voor modernisering.
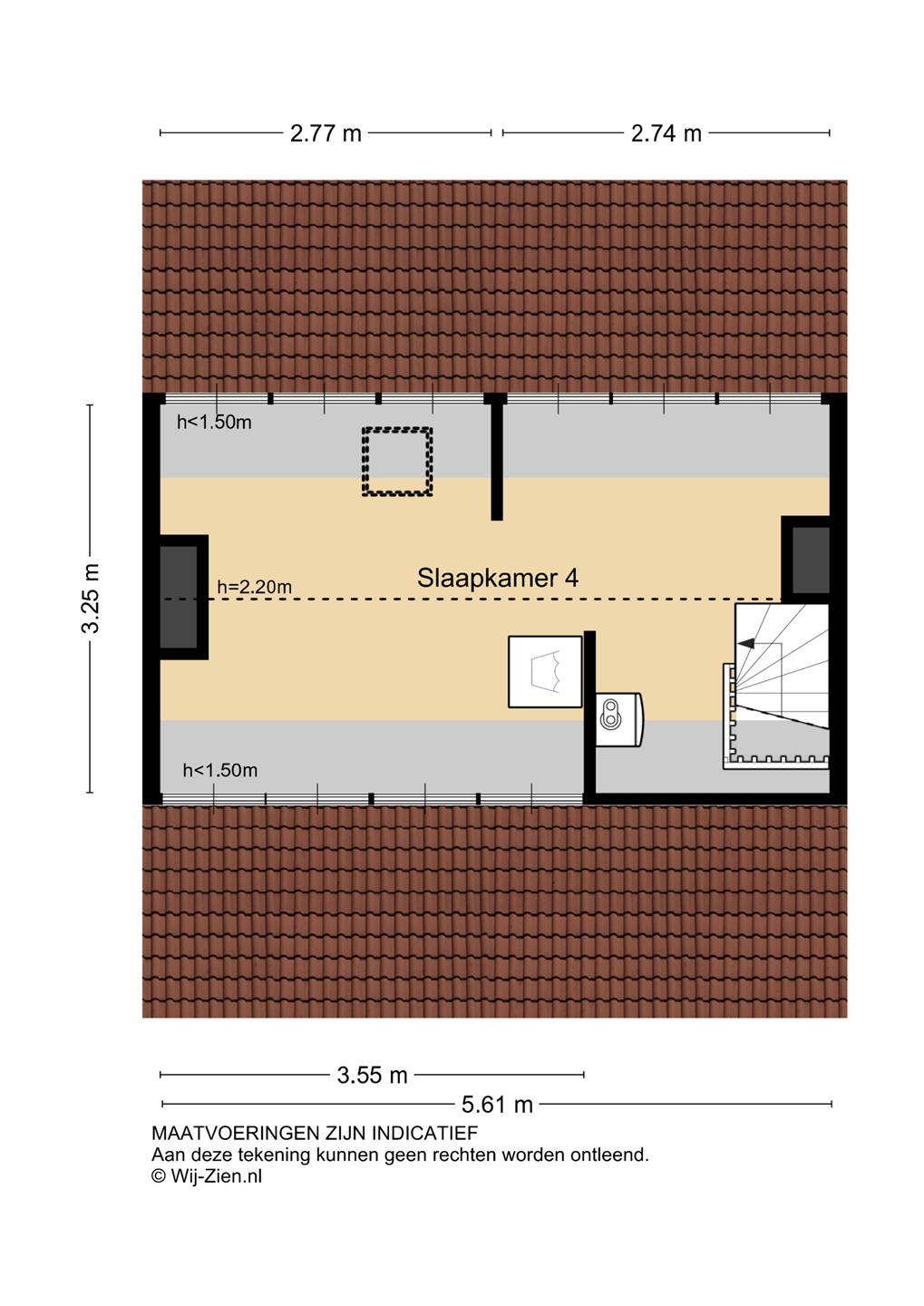
Tweede verdieping
Zolder: De tweede verdieping is bereikbaar via een vaste trap en biedt verrassend veel ruimte. De vloer is voorzien van vloerbedekking, de wanden van behang en een delenplafond. Op deze verdieping bevinden zich de Cv-ketel (Nefit, 2008) en de aansluitingen voor wasmachine en droger. Dankzij het dakraam aan de achterzijde komt er daglicht binnen, waardoor de ruimte prettig aanvoelt. Deze verdieping wordt momenteel als bergzolder gebruikt, maar kan eenvoudig voor andere doeleinden worden ingericht.
Tuin
Voortuin: De voortuin (afm. ca. 5,7 x 4,50 m) ligt op het zuidwesten en is aangelegd met grind en bestrating. Er is een water- en elektravoorziening aanwezig, evenals rolluiken aan de voorzijde van de woning. Vanuit de voortuin heb je een leuk uitzicht op de villa’s aan de overzijde van de straat, wat zorgt voor een ruimtelijk gevoel.
Achtertuin: De diepe achtertuin (afm. ca. 12,30 x 5,70 m) ligt op het noordoosten en beschikt over een achterom. De tuin is voorzien van water en elektra, en biedt volop ruimte voor een zitgedeelte, speelplek of groene beplanting. Een fijne buitenruimte die uitnodigt om iets moois van te maken.
Schuur: Achter in de tuin staat een stenen schuur met zadeldak, voorzien van elektra. Ideaal voor het stallen van fietsen, tuingereedschap of als kleine werkruimte.
Bijzonderheden
Deze woning aan de W.B van der Veldenstraat heeft een leuke ligging in de wijk Kinderdijk. Je hebt hier de perfecte omgeving voor een (jong) gezin te pakken! Voorzieningen zoals een basisschool, kinderdagverblijf, een park, speeltuinen en een winkelgelegenheid zijn op een steenworp afstand te vinden. Hier laat je je gezin toch graag opgroeien?
ALGEMEEN
Bouwjaar: 1958
Verwarming: Nefit Cv-ketel (2008)
Warmwatervoorziening: Nefit Cv-ketel (2008)
Glas: Grotendeels dubbele beglazing
Kozijnen: Hout