Beschrijving
Dit keurige appartement is gelegen op de tweede verdieping en ligt midden in het centrum van Alblasserdam. De woonkamer is licht en biedt een mooi uitzicht over de haven. Aansluitend bevindt zich de loggia, die dankzij de glazen pui en screens het hele jaar door prettig te gebruiken is. De keuken sluit hier prettig op aan en vormt samen met de woonkamer een fijne leefruimte. Het appartement beschikt over twee slaapkamers en een praktische indeling waarbij alle vertrekken vanuit de hal bereikbaar zijn. Daarnaast is er een aparte wasruimte en een inpandige berging in het complex. In de parkeerkelder beschikt u over een vaste parkeerplaats. Alle voorzieningen, winkels en openbaar vervoer bevinden zich op korte afstand.
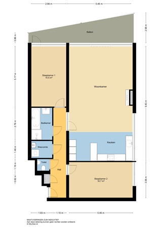
Indeling
Entree: U betreedt het appartement in een ruime hal. Vanuit hier heeft u toegang tot alle vertrekken. De lange entree is netjes afgewerkt met een antracietkleurige plavuizenvloer, structuurwanden en een strak spuitwerkplafond.
Meterkast: De meterkast is voorzien van 9 elektrische groepen en twee aardlekschakelaars met een hoofdaardlekschakelaar.
Toilet: De keurige toiletruimte is neutraal uitgevoerd met gedeeltelijke betegeling. Het toilet is voorzien van een fonteintje en een zwevend toilet.
Woonkamer: De woonkamer biedt dankzij de glazen pui een mooi uitzicht op de haven en voelt licht en ruim aan. De gashaard staat centraal in de kamer, waardoor u hier eenvoudig een comfortabele zithoek kunt creëren. Het zijraam zorgt voor extra lichtinval en de screens houden de zon op warme dagen buiten. Aansluitend bevindt zich de loggia (8,45 m lang), waarvan de pui geheel geopend kan worden. In de zomer kunt u hier buiten zitten en in de winter sluit u de pui eenvoudig. De woonkamer loopt prettig over in de keuken, waardoor er een mooie plek is voor een eethoek. De ruimte is keurig afgewerkt met een plavuizenvloer, structuurwanden en een spuitwerkplafond.
Keuken: De ruime keuken is opgezet in een praktische U-opstelling, aangevuld met een extra rechte wandopstelling. Hierdoor beschikt u over veel werkruimte en houdt u alles binnen handbereik. De keuken is van alle gemakken voorzien met een inductiekookplaat, afzuigkap, koelkast, vriezer en vaatwasser. Dankzij de praktische indeling en de grote hoeveelheid kastruimte bergt u al uw keukengerei netjes op. De ruimte is keurig afgewerkt op dezelfde wijze als de woonkamer.
Slaapkamer 1: Slaapkamer één ligt aan de voorzijde van het appartement en biedt mooi zicht op de Alblasserdamse haven. Via de deur heeft u direct toegang tot de loggia. De kamer heeft voldoende ruimte voor een tweepersoonsbed en een praktische kledingkast. De ruimte is netjes afgewerkt met een laminaatvloer, structuurwanden en een spuitwerkplafond.
Slaapkamer 2: Slaapkamer twee ligt aan de zijkant van het appartement en heeft een hogergeplaatst raam dat voor prettige lichtinval zorgt. De langvormige indeling biedt meerdere mogelijkheden, waardoor u de ruimte kunt gebruiken extra slaapkamer, studeerkamer of hobbykamer. De ruimte is keurig afgewerkt met een laminaatvloer, structuurwanden en een spuitwerkplafond.
Badkamer: De badkamer is van alle gemakken voorzien met een ligbad, douchecabine, wastafelmeubel, designradiator en mechanische ventilatie. De ruimte biedt alles wat u nodig heeft om te ontspannen of u op te frissen. De badkamer is netjes en volledig betegeld.
Wasruimte: Naast de toiletruimte bevindt zich de praktische wasruimte. Hier vindt u de wasmachine- en drogeraansluiting, evenals de opstelplaats van de Cv-ketel en de mechanische ventilatie. Deze ruimte is ideaal voor het opbergen van schoonmaakspullen en het doen van de was. De afwerking is netjes met een plavuizenvloer, gedeeltelijk betegelde wanden en een spuitwerkplafond.
Balkon
Loggia: Inpandig balkon met een glazen pui en screens. Dit is een heerlijke plek om in stijl te relaxen. Of het nu voorjaar, zomer, herfst of winter is, hier kunt u heerlijk vertoeven!
Inpandige berging: De inpandige berging (afm. ca. 2,52 x 2,04 m) behorend bij het appartement ligt in het complex en biedt een praktische plek voor opslag. De ruimte is voorzien van elektra en volledig geïsoleerd.
Parkeerplaats: Bij het appartement hoort een vaste parkeerplaats in de parkeerkelder onder het appartementencomplex. Ideaal om de auto dichtbij te parkeren.
Bijzonderheden
Dit keurige appartement kijkt uit op de jachthaven en is gelegen in het hart van Alblasserdam. Praktische voorzieningen zoals winkelcentrum 'Makado', het gemeentehuis, de haven, een cultureel centrum met bioscoop, verschillende bushaltes en uitvalswegen zijn op loopafstand van het Raadhuisplein te vinden.
Het appartementencomplex beschikt over een lift en een eigen parkeerplaats in de kelder van het complex.
ALGEMEEN
Bouwjaar: 2003
Verwarming: Remeha (2019)
Warmwatervoorziening: Remeha (2019)
Glas: Dubbele beglazing
Kozijnen: Houten en kunststof kozijnen