Beschrijving
Deze drive-inwoning in Alblasserdam is een kluswoning met volop mogelijkheden om alles naar eigen smaak te moderniseren. De woning beschikt over betonnen vloeren en biedt de mogelijkheid om de indeling op verschillende manieren aan te passen. Op de begane grond vind je een ruime hal, grote garage en een multifunctionele tuinkamer, die je eenvoudig kunt ombouwen tot slaapkamer, werk- of hobbyruimte. Op de eerste verdieping bevindt zich een lichte doorzonwoonkamer met balkon aan de voor- en achterzijde, een toiletruimte en een eenvoudige keuken. De tweede verdieping telt drie slaapkamers en een badkamer die volledig naar eigen wens vernieuwd kan worden. De woning heeft een onderhoudsvriendelijke voortuin met oprit voor één auto en een royale achtertuin op het zuidwesten. De locatie is kindvriendelijk, met scholen, speeltuinen en winkels op korte afstand. Met de nodige aandacht en creativiteit kan deze woning worden omgetoverd tot een ware droomplek. Bel ons snel voor een bezichtiging!
Indeling
Entree: De ruime hal geeft toegang tot de meterkast, grote garage, multifunctionele ruimte en trapopgang naar de eerste verdieping. De ruimte is afgewerkt met een plavuizen vloer, structuurwanden en een gestuukt plafond.
Meterkast: Meterkast met 7 stoppen.
Tuinkamer/multifunctionele ruimte: De ruimte geeft via een deur toegang tot de achtertuin. Je kunt het inrichten als slaapkamer, hobbyruimte of een thuiskantoor. Of pas je de ruimte helemaal aan en betrek je een stuk van de garage? Er zijn mogelijkheden genoeg. De ruimte is afgewerkt met een zeilvloer, behangwanden en een gestuukt plafond.
Garage: Handige garage met voldoende ruimte voor het plaatsen van je auto. De garage is voorzien van een handmatige roldeur, elektra, water en heeft een betonnen vloerafwerking. Maak er een werkbank en je hebt hier een fijne klusruimte aan.
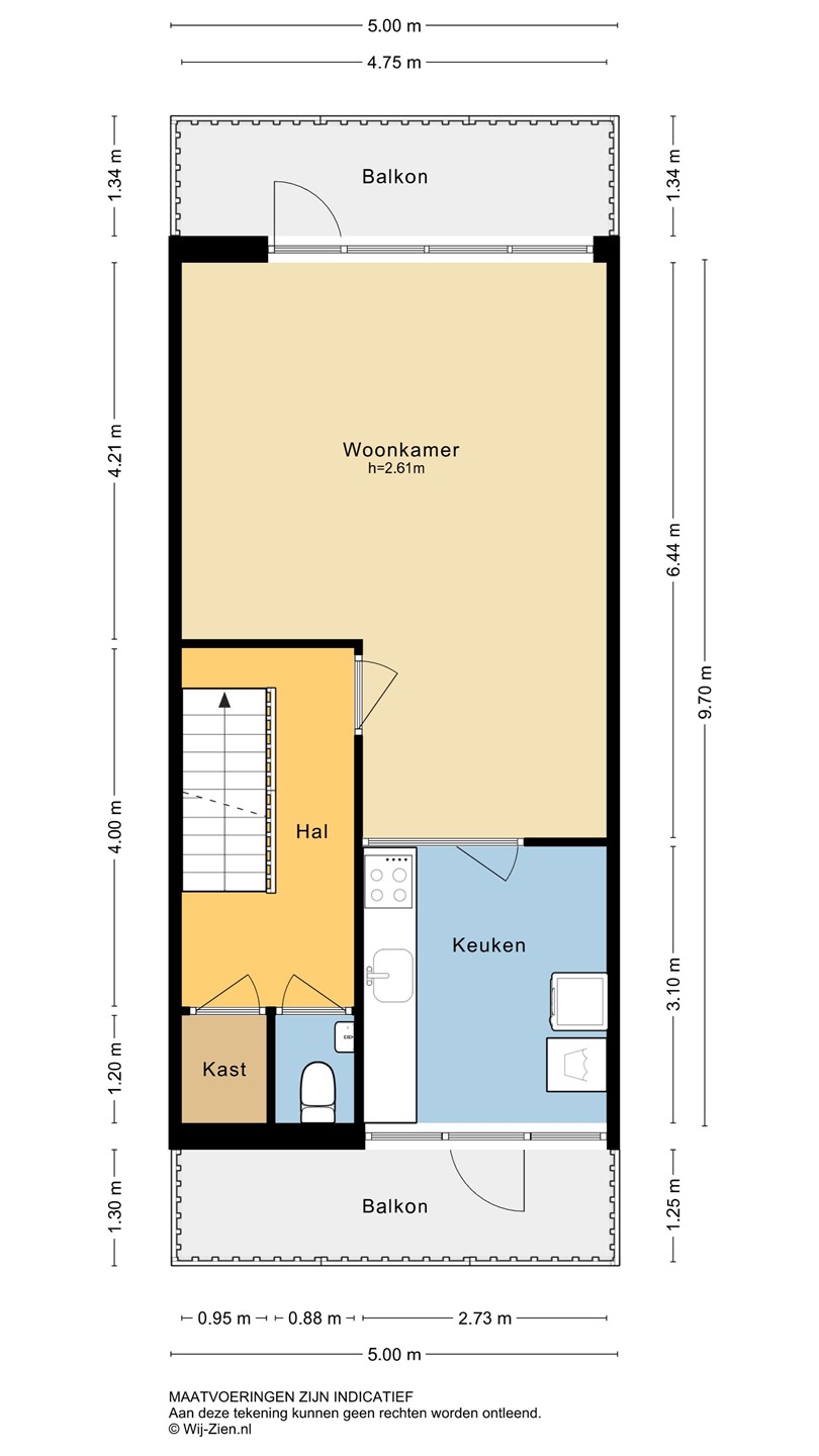
Eerste verdieping
Overloop: De L-vormige overloop geeft toegang tot de woonkamer, toiletruimte, grote inbouwkast en trapopgang naar de tweede verdieping. De ruimte is afgewerkt met een zeilvloer, structuurwanden en een gestuukt plafond.
Toilet: Gedateerde toiletruimte, deels betegeld en voorzien van een staand closet en fonteintje.
Woonkamer: De doorzoonwoonkamer is ruim en heeft aan de voor- en achterzijde een balkon. De woonkamer heeft een fijn formaat met voldoende ruimte voor je zit- en eethoek. Wanden stuken, nieuwe vloer erin, plafond witten en je zit er weer fris bij. De kozijnen op deze verdieping zijn van hout, dus die moet je wel af en toe wel een likje verf geven. De ruimte is afgewerkt met een houten vloer, behangwanden en een gestuukt plafond.
Keuken: De keuken is op dit moment gedateerd en toe aan vernieuwing. Een perfecte kans om er helemaal je eigen droomkeuken van te maken. Ons advies is om de keuken open te maken naar de woonkamer, zodat er een moderne, lichte leefruimte ontstaat. De huidige keuken is voorzien van een oven en een 4-pits gasstel. Pak je Pinterest-bord er dus maar bij, want hier kun je echt iets moois van maken! De keuken geeft toegang tot het balkon aan de voorzijde. De ruimte is afgewerkt met een zeilvloer, tegelwanden en een gestuukt plafond.
Tweede verdieping
Overloop: De grote overloop in L-vorm geeft toegang tot de slaapkamers, badkamer en een inbouwkast. Deze inbouwkast dient als opstelplaats van de Cv-ketel. De ruimte is afgewerkt met vloerbedekking, structuurwanden en een zachtboard plafond.
Slaapkamer 1: Slaapkamer één ligt aan de achterzijde van de woning en is voorzien van een rolluik. Het is een praktische ruimte die prima kan dienen als kinder- of tienerkamer, maar ook als hobbykamer of kantoortje. Er past eenvoudig een eenpersoonsbed in, waardoor de kamer goed te benutten is en helemaal naar eigen wens kan worden ingericht. De slaapkamers zijn afgewerkt met vloerbedekking, behangwanden en een zachtboard plafond.
Slaapkamer 2: Slaapkamer twee is een grote slaapkamer aan de achterzijde van de woning en is voorzien van een rolluik. Het is de master bedroom van de woning en biedt veel ruimte en mogelijkheden om de indeling helemaal naar eigen wens te maken.
Slaapkamer 3: Deze ruime slaapkamer ligt aan de voorzijde van de woning en beschikt over een vaste kast en een eigen wastafel. Het is een grote, lichte kamer met volop mogelijkheden. Met een frisse verflaag, nieuwe vloer en een beetje styling kun je hier echt een fijne slaapkamer van maken.
Badkamer: De badkamer is gedateerd en zal waarschijnlijk geheel worden vernieuwd. Op dit moment is de ruimte voorzien van een wastafel, ligbad en toilet. Er zijn volop mogelijkheden om de badkamer naar eigen smaak en wens in te richten. Wil je opnieuw een ligbad of liever een moderne inloopdouche? Ook is er voldoende ruimte om een toilet opnieuw te plaatsen.
Balkon
Balkon 1: Aan de voorzijde gelegen balkon (afm. ca. 1.25 x 5.00). Leuk om er een zitje te plaatsen.
Balkon 2: Zonnig balkon (afm. ca. 1.35 x 5.00) gelegen aan de achterzijde van de woning. Het balkon kijkt uit op de groene achtertuin.
Tuin
Voortuin: De voortuin (afm. ca. 5.80 x 5.00) is onderhoudsvriendelijk aangelegd en ligt op het noordoosten. De ruimte dient als oprit, ideaal voor een eigen parkeerplek direct voor de deur.
Achtertuin: De royale achtertuin (afm. ca. 15.50 x 5.00) is gelegen op het zonnige zuidwesten, waardoor je in de middag en avond volop van de zon kunt genieten. De tuin heeft geen achterom, maar wel een vrije ligging waardoor je veel privacy ervaart. De achtertuin is aangelegd met gras en gevarieerde beplanting. Heb je groene vingers? Dan kun je hier een prachtige, sfeervolle buitenruimte van maken, bijvoorbeeld met borders, terrasjes of een gezellige zithoek.
Bijzonderheden
In de omgeving van de Potgieterstraat vind je de supermarkt op loopafstand en veel kindvriendelijke voorzieningen zoals een speeltuin in de buurt, basisscholen, een skatebaan en parkjes. Verder liggen uitvalswegen en het centrum van Alblasserdam op korte afstand van de woonwijk.
ALGEMEEN
Bouwjaar: 1969
Verwarming: Vaillant Cv-ketel (2020)
Warmwatervoorziening: Vaillant Cv-ketel (2020)
Glas: Enkele beglazing
Kozijnen: Houten kozijnen