Beschrijving
Deze splitlevelwoning aan de Oost Kinderdijk biedt een verrassend ruime en lichte indeling, compleet met vier slaapkamers, twee badkamers, vloerverwarming en airconditioning. Op dijkniveau stap je de hal binnen, met toegang tot de keuken en de trap naar de woonkamer. De keuken is ruim en licht, met een prachtig uitzicht over de rivier de Noord. De woonkamer ligt een trapje lager en wordt overspoeld door natuurlijk licht dankzij de grote glazen pui die toegang biedt tot de tuin. Zo lopen binnen en buiten naadloos in elkaar over. Op de eerste verdieping vind je een slaapkamer, een badkamer en een praktische technische ruimte. De tweede verdieping bestaat uit drie slaapkamers en een tweede badkamer, ideaal voor een gezin of gasten. Op de derde verdieping heb je toegang tot de dakterrassen aan zowel de voor- als achterzijde, perfect om van zon én schaduw te genieten en te ontspannen met een mooi uitzicht over de Crezéepolder. De woning ligt dichtbij scholen en het winkelcentrum van Alblasserdam, waardoor wonen hier zowel praktisch als comfortabel is. Geniet van het buitenleven, de ruime indeling en het prachtige uitzicht dat deze woning te bieden heeft.
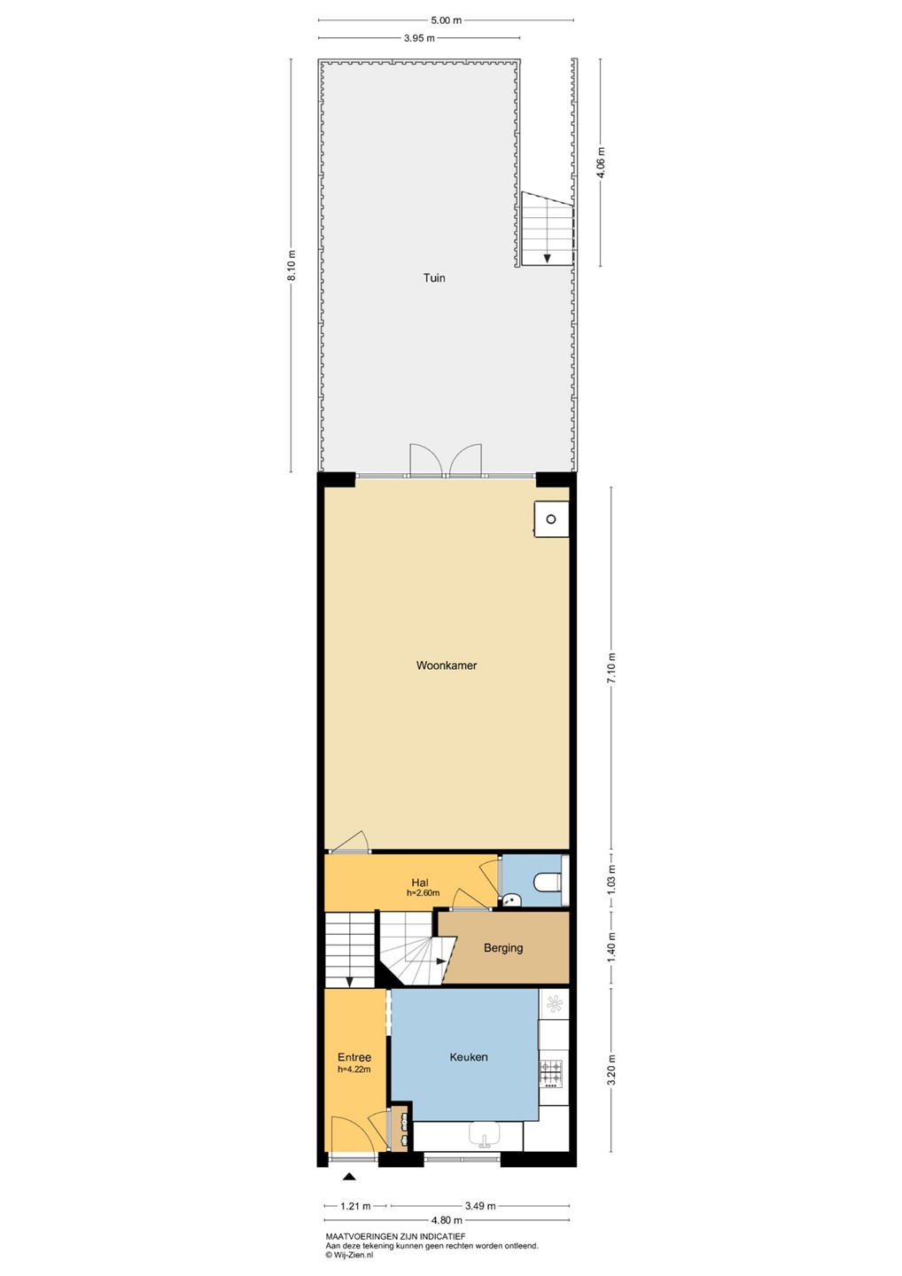
Indeling
Entree: Via de hal op dijkniveau betreed je de woning. De ruimte heeft een zeer hoog plafond, wat direct een gevoel van openheid geeft. Vanuit de hal heb je toegang tot de keuken, de trap naar de woonkamer en de meterkast. De hal biedt voldoende ruimte voor een garderobe en is netjes afgewerkt met gestuukte wanden en plafond. De PVC-vloer met vloerverwarming ligt in de gehele woning.
Meterkast: De meterkast beschikt over acht elektrische groepen, een hoofdschakelaar en een aardlekschakelaar.
Toilet: De keurige toiletruimte is deels betegeld en voorzien van een zwevend toilet, fonteintje en mechanische ventilatie.
Woonkamer: De woonkamer ligt een trapje lager dan de hal en wordt overspoeld door natuurlijk licht dankzij de grote glazen pui die uitkijkt op de tuin. Hier staat een sfeervolle gashaard en de vloerverwarming zorgt voor extra comfort. Door de split levels krijgen de ruimtes een ruimtelijk en speels gevoel. Vanuit de woonkamer stap je zo de tuin in, waardoor binnen en buiten naadloos in elkaar overlopen.
Keuken: De deels open keuken is hoog en ruim opgezet, met plek voor een gezellige hoge (bar)tafel. Je vindt hier alle moderne voorzieningen: een oven, een 5-pits gasstel met afzuigkap, kokend waterkraan, een koel-/vriescombinatie en een vaatwasser. Tijdens het koken heb je een prachtig uitzicht over de rivier de Noord en het voorbijvarende verkeer. De slimme indeling biedt veel werkruimte en dankzij de grote ramen valt er volop natuurlijk licht naar binnen, wat het koken nog prettiger maakt.
Eerste verdieping
Overloop: Vanaf de overloop heb je toegang tot een slaapkamer, de badkamer en de technische ruimte. De verdieping is netjes afgewerkt met een laminaatvloer, gestuukte wanden en een spuitwerkplafond, waardoor het geheel een frisse en verzorgde uitstraling heeft.
Slaapkamer 1: Deze ruime slaapkamer aan de achterzijde wordt momenteel gebruikt als kastenkamer en werkkamer, maar biedt volop mogelijkheden om te veranderen in een royale master bedroom. Vanuit de kamer kijk je uit op de rustige achterzijde van de woning.
Badkamer 1: De keurige, inpandige badkamer is volledig betegeld en beschikt over een ligbad, douchecabine, toilet, designradiator en mechanische ventilatie. Er is voldoende ruimte om comfortabel te baden of douchen, en de handige nisjes bieden praktische opbergruimte voor handdoeken en accessoires.
Technische ruimte: De inpandige technische ruimte is voorzien van een aansluiting voor wasmachine en droger, de Cv-ketel en een luchtwarmte warmtepomp. Daarnaast biedt deze ruimte veel opbergruimte voor bijvoorbeeld je stofzuiger, wasmiddelen en andere huishoudelijke spullen.
Tweede verdieping
Overloop: De overloop geeft toegang tot drie slaapkamers en een badkamer. Ook op deze gehele verdieping ligt vloerverwarming. De verdieping is afgewerkt met een laminaatvloer, gestuukte wanden en een spuitwerk plafond.
Slaapkamer 2: Deze slaapkamer ligt aan de voorzijde en is uitgerust met airconditioning, waardoor het hier altijd aangenaam is. Vanuit de kamer heb je een prachtig uitzicht over de rivier, een plek waar je elke ochtend met plezier wakker wordt.
Slaapkamer 3: Aan de achterzijde vind je deze ruime slaapkamer, met een prettige indeling en veel natuurlijk licht. De kamer biedt alle mogelijkheden om er een comfortabele slaap- of werkkamer van te maken.
Slaapkamer 4: Deze slaapkamer heeft een fijn formaat en is momenteel ingericht als kinderkamer. Ook hier zie je de keurige afwerking van de gehele woning terug.
Badkamer 2: Op deze verdieping is ook een badkamer aanwezig. De ruimte is deels betegeld en voorzien van een douche, toilet, wastafel, mechanische ventilatie en vloerverwarming. Comfortabel en praktisch voor het hele gezin.
Overige verdiepingen
Op de derde verdieping heb je toegang tot dakterrassen aan zowel de voor- als achterzijde. Deze buitenruimtes bieden volop mogelijkheden om te genieten van zon of schaduw, terwijl je uitkijkt over de uitgestrekte Crezéepolder. Een heerlijke plek om even te ontspannen, een boek te lezen of te genieten van het buitenleven.
Tuin
Tuin: De achtertuin, gelegen op het noordoosten, geniet heerlijk van het ochtendzonnetje. Vanuit de woonkamer loop je rechtstreeks de tuin in, waar je een ruime en sfeervolle buitenruimte vindt van ca. 8,10 x 5,00 meter. Er is volop plek om een gezellige loungeset of een eettafel met stoelen neer te zetten, ideaal voor ontspannen momenten, een ontbijt in de zon of gezellige borrels met vrienden en familie.
Schuur: De praktische schuur is voorzien van elektra en biedt voldoende ruimte voor fietsen, gereedschap en andere spullen.
Bijzonderheden
Deze woning combineert comfort met een prachtige ligging: je geniet hier van een schitterend uitzicht op de rivier de Noord en de nabijheid van natuurgebied “Crezéepolder”. Voorzieningen zoals winkels, basisscholen en de recreatieplas Het Lammetjeswiel zijn binnen handbereik. Bovendien kun je hier heerlijk wandelen en fietsen met mooie routes door het karakteristieke molengebied.
ALGEMEEN
Bouwjaar: 2015
Verwarming: Remeha Cv-ketel (2014) + vloerverwarming geheel + lucht warmtepomp + gashaard
Warmwatervoorziening: Remeha Cv-ketel (2014)
Glas: Dubbele beglazing
Kozijnen: Houten kozijnen