Beschrijving
Deze ruime tussenwoning, gelegen in de rustige en kindvriendelijke wijk Nieuw-Lekkerland, biedt maar liefst vijf slaapkamers en een bijzonder ruime en lichte begane grond dankzij de grote serre. De royale woonkamer is sfeervol ingedeeld met een zithoek aan de voorzijde, een eethoek aan de achterzijde en een gezellige houtkachel met mooie schouw. De landelijke keuken is ruim opgezet en voorzien van diverse apparatuur. Op de eerste verdieping bevinden zich drie keurig afgewerkte slaapkamers en een stijlvolle badkamer. De tweede verdieping biedt nog eens twee slaapkamers, beide ruim en voorzien van praktische opbergmogelijkheden. Extra opbergruimte is beschikbaar in de trapkast en diverse inbouwkasten door het huis. De woning is verder uitgerust met 12 zonnepanelen, wat zorgt voor energiebesparing. Zowel de voortuin op het noordoosten als de achtertuin op het zuidwesten zijn onderhoudsvriendelijk en keurig aangelegd. Met de combinatie van ruimte, praktische indeling en verzorgde afwerking is dit een ideale woning voor een groot gezin of mensen die behoefte hebben aan veel leefruimte en comfort.
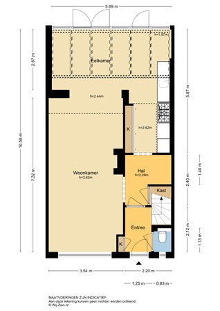
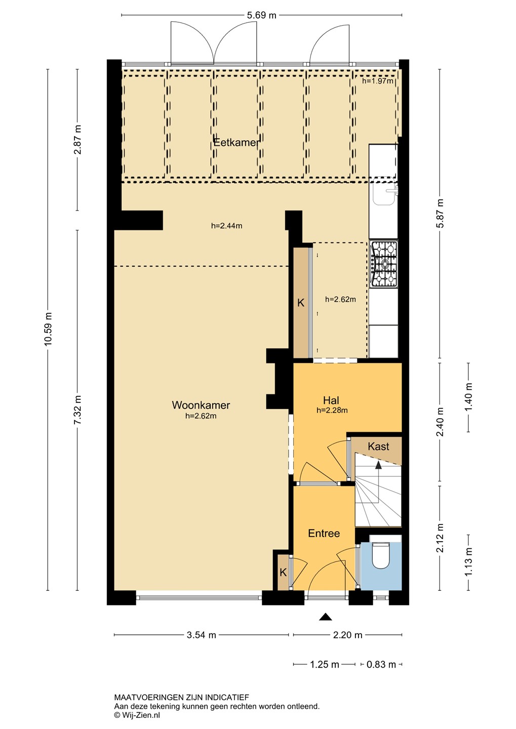
Indeling
Entree: De hal geeft toegang tot de meterkast, toiletruimte, woonkamer en trapopgang naar de eerste verdieping. De ruimte is afgewerkt met een laminaatvloer, behangwanden en een gestuukt plafond. De vloer loopt door over de gehele begane grond.
Meterkast: Meterkast met 10 elektrische groepen, een aardlekschakelaar en hoofdaardlekschakelaar.
Toilet: De toiletruimte is keurig afgewerkt en voorzien van een zwevend closet, inbouwspots, radiator en een raampje.
Woonkamer: De woonkamer is keurig afgewerkt en biedt een fijne indeling met een zithoek aan de voorzijde en een eethoek aan de achterzijde. Een gezellige houtkachel met mooie schouw vormt het warme middelpunt van de ruimte. Door de grote serre aan de achterzijde valt enorm veel natuurlijk licht binnen, terwijl een zonnescherm het ook in de zomer comfortabel houdt. Handige extra’s zoals de trapkast en diverse opbergmogelijkheden maken de ruimte praktisch. Bovendien is er beneden voldoende plek om bijvoorbeeld een extra kast of een thuiswerkhoekje te creëren. De ruimte is afgewerkt met een laminaatvloer, behang-/ gestuukte wanden en een gestuukt plafond.
Keuken: De keuken is bijzonder ruim en uitgevoerd in een landelijke stijl, waardoor er veel werk- en opbergruimte is. Voorzien van een 5-pits gasfornuis met ovens, een afzuigkap, koel-/vriescombinatie en vaatwasser, is koken hier een plezier. In dezelfde ruimte bevinden zich bovendien prachtige inbouwkasten die extra opbergruimte bieden en de landelijke uitstraling van de keuken compleet maken.
Eerste verdieping
Overloop: De overloop geeft toegang tot de slaapkamers, badkamer en trapopgang naar de tweede verdieping. De ruimte is afgewerkt met vloerbedekking, gestuukte wanden en een gestuukt plafond.
Slaapkamer 1: Slaapkamer één bevindt zich aan de voorzijde van de woning en biedt een prettig, vrij uitzicht. De kamer is uitgerust met een hor en beschikt over een handige inbouwkast met houten schuifdeuren. Een prima, praktische slaapkamer die direct in gebruik kan worden genomen. De slaapkamers zijn afgewerkt met vloerbedekking, behangwanden en een gestuukt plafond.
Slaapkamer 2: Slaapkamer twee ligt aan de achterzijde van de woning en is een ruime, keurig afgewerkte kamer. Dankzij de aanwezige hor kan je hier onbezorgd luchten. De kamer leent zich uitstekend als ouderlijke slaapkamer, met voldoende ruimte voor een groot bed en een royale kledingkast. Ook hier komt de verzorgde afwerking van de woning duidelijk terug.
Slaapkamer 3: Slaapkamer drie bevindt zich aan de voorzijde van de woning en is voorzien van een hor. Het is een fijne, langwerpige kamer die zich uitstekend leent als kinderkamer of werkkamer. Dankzij het prettige formaat is er voldoende ruimte om de kamer geheel naar wens in te richten.
Badkamer: De badkamer is praktisch en stijlvol ingericht en voorzien van een ligbad met douchegelegenheid, een zwevend closet, wastafel en een aansluiting voor de wasmachine. Een designradiator zorgt voor extra comfort. De afwerking is tijdloos en netjes met witte wandtegels, een antracietkleurige vloer en houtlook meubels en kast.
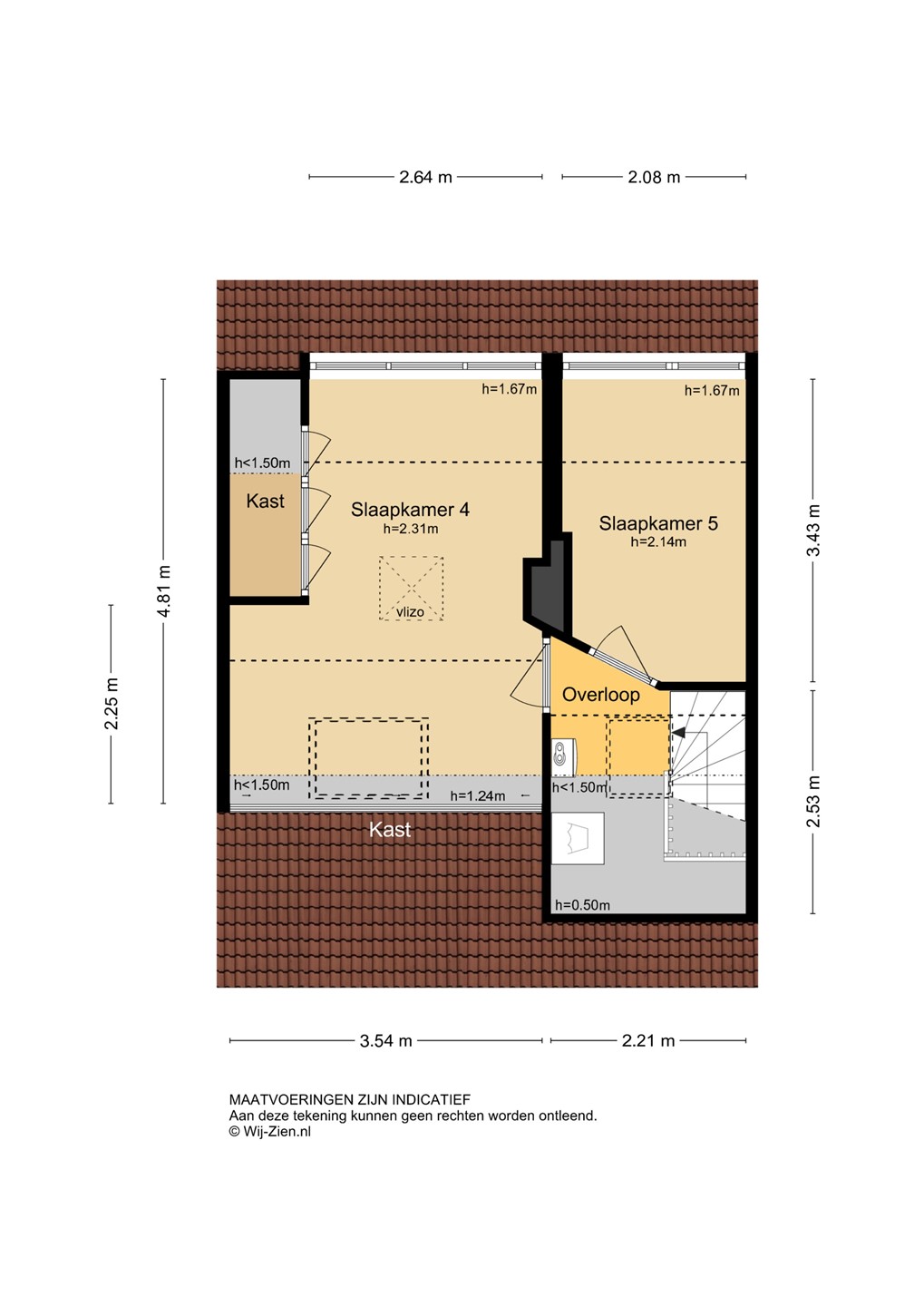
Tweede verdieping
Overloop: De overloop op de tweede verdieping beschikt over een dakraam, opstelplaats van de Cv-ketel, wasmachineaansluiting en de omvormer van de zonnepanelen. De overloop geeft toegang tot twee slaapkamers. De ruimte is afgewerkt met vloerbedekking, gestuukte wanden en een gips plafond.
Slaapkamer 4: Slaapkamer vier is een nette en ruime kamer. Aan de voorzijde zorgt een dakraam, voorzien van hor, voor veel lichtinval en een prachtig uitzicht over de weilanden. Aan de achterzijde biedt de nokverhoging extra ruimte, waardoor dit een volwaardige slaapkamer is. Praktische opbergschotten en fraaie inbouwkasten maken het geheel compleet en zorgen voor volop bergruimte. De ruimte is afgewerkt met een laminaatvloer, behangwanden en een gestuukt plafond.
Slaapkamer 5: Slaapkamer vijf is een kleinere kamer, maar is nog steeds van prima formaat en keurig afgewerkt. Dankzij de nokverhoging voelt de ruimte ruimtelijk aan en de inbouwspots zorgen voor een moderne uitstraling. De kamer is voorzien van een hor. De ruimte is afgewerkt met een laminaatvloer, glasvlies behangwanden en een gestuukt plafond.
Tuin
Voortuin: De voortuin (afm. ca. 4.30 x 5.90), gelegen op het noordoosten, is keurig aangelegd en voorzien van veel mooie beplanting. Het afdakje bij de voordeur zorgt voor een gastvrije entree, terwijl de rustige straat bijdraagt aan de fijne uitstraling. Al bij binnenkomst maakt de verzorgde voortuin een prettige eerste indruk.
Achtertuin: De achtertuin (afm. ca. 8.50 x 5.90) ligt op het zonnige zuidwesten, waardoor je optimaal van de zon kunt genieten. De tuin is keurig aangelegd en onderhoudsvriendelijk. Er is een ruime schuur met een klein overdekt gedeelte en een aparte schuur voor de fietsen. Met een gezellige zithoek, wat planten en potten is dit een heerlijke plek om te ontspannen. Daarnaast zorgt een zonnescherm voor extra comfort op zonnige dagen.
Schuur: De schuur is ruim en praktisch, voorzien van elektra en een handige vliering voor extra opslag. Onder het overdekte gedeelte kun je een gezellig bankje plaatsen, waardoor de schuur ook als fijne buitenruimte te gebruiken is.
Bijzonderheden
De Floris V-Straat ligt in de wijk Nieuw-Lekkerland aan de rand van het dorp, dichtbij het buitengebied. Hier woon je heel rustig en kindvriendelijk.
ALGEMEEN
Bouwjaar: 1969
Verwarming: Intergas HRE Cv-ketel (2025)
Warmwatervoorziening: Intergas HRE Cv-ketel (2025)
Glas: Grotendeels dubbele beglazing
Kozijnen: Houten en kunststof kozijnen
Zonnepanelen: 12 stuks